как выглядит в разрезе, элементы гидроизоляции
Содержание статьи:
Каждый узел ленточного фундамента влияет на степень надежности итоговой постройки. При обустройстве основания важно уделить внимание и гидроизоляции.
Определение ленточного фундамента
Ленточное основание
Данный тип фундамента имеет форму замкнутой конфигурации (ленты) из железобетона. Она выполняет функцию передачи нагрузки от стен помещения почве. На сторонах основания возводятся стены постройки. Применяют такой фундамент чаще в индивидуальном частном строительстве, нежели в промышленном. Если сравнивать с плитными основаниями, материальных и трудовых ресурсов уходит намного меньше, что обусловливает популярность железобетонных лент в дачном секторе. Это одна из наименее дорогостоящих разновидностей фундамента. На нем можно возводить здания, имеющие подвал или цокольный этаж.
Такое основание подходит только для устойчивых непучинистых грунтов. В случае с «проблемными» почвами лучше предпочесть сваи или плиту.
Ленточный фундамент в разрезе
Ленточный фундамент в разрезе
На ленте можно построить хозяйственную постройку небольшого размера, деревянный, каменный или кирпичный дом. Во втором случае основание создается на прослойке из песка и гравия, покрытой гидроизоляционным материалом, чтобы насыпь не размывалась грунтовыми водами). Если строится сарай или баня, подушку можно не использовать. Заранее нужно подготовить чертежи с описаниями.
Разрез фундамента определяется его строением. Содержит армированные бетонные секции, обложенные гидроизоляционным слоем. Над уровнем грунта располагается отмостка, предназначенная для предохранения ленты от воздействия влаги. Расширенная часть, находящаяся на насыпной подушке – подошва основания.
Каждый узел фундамента несет важную функциональную нагрузку. Пренебрежение теми или иными компонентами отрицательно скажется на эксплуатационных характеристиках.
На вид ленточного фундамента в разрезе влияет и уровень заглубления.
Если он небольшой (0,5-0,7 м), основание сможет выдержать лишь легкую постройку. Для строительства кирпичного дома оно не годится. В этом случае заглубление должно быть на 0,3 м ниже точки промерзания почвы.
Если основание решено делать монолитным, каркас из арматуры вяжут непосредственно на объекте и затем заливают бетонной смесью. Такая конструкция отличается прочностью, но долго застывает. Этот вид проще всего сделать своими силами.
Бывают основания, состоящие из отдельных блоков железобетона промышленного производства. Монтируется такой фундамент быстро, но прочность конструкции ниже, чем у цельных вариантов. Кроме того, процесс потребует найма рабочих и аренды специального оборудования.
Описание узлов гидроизоляции фундамента
Горизонтальная и вертикальная гидроизоляция
Перед обустройством основания нужно проанализировать особенности почвы, в частности, грунтовых вод и других источников жидкости. Иногда влага поступает в грунт из фильтрационных вод.
Избыточное содержание жидкости в близлежащих участках земли постепенно разрушает основание. Чтобы предотвратить это, нужно правильно организовать защиту. Для этого может использоваться дренажная система, уводящая воды от постройки. Также необходим гидроизоляционный фундаментный узел, защищающий толщу основания от попадания влаги. Проводится обкладывание слоями специальных материалов.
Распространенный вариант – окрасочные составы. Щебенку, пропитанную битумом (слой в 10 см) выравнивают раствором цемента марки 100. Затем поверхность грунтуют и наносят окрасочную изоляцию вида 1-5. Прежде чем укладывать конструкцию, делается цементная стяжка из того же раствора. Используют для изоляции и асфальтовые составы. В этом случае щебенку грунтуют битумом.
Защитные материалы
Узел гидроизоляции фундамента может быть выполнен из разных материалов. Их выкладывают на защищаемую поверхность послойно в 2-4 приема. Примерами могут быть:
- окрасочная изоляция с применением материала вида 1-5;
- оклеечная прослойка 7 либо 8 типа;
- литая с сырьем типа 4.

Иногда практикуется комбинация разных видов материалов. Например, на загрунтованную щебенку с битумной пропиткой наносят асфальтную изоляцию типа 5. Затем на стяжку (3 см) и затирку (1 см) из цемента помещают материал для армирования (стеклоткань). Сверху наносится окрасочная изоляция 2 вида.
- Литая
- Окрасочная
- Оклеечная
Важные узлы ленточного фундамента
Арматурный каркас
Экономия на основных узлах легко обернется снижением эксплуатационных качеств. Стены могут начать трескаться, в подвале появятся плесневые грибки. Чтобы этого не допустить, нужно ответственно подойти к обустройству узлов.
Узел опоры фундамента на грунт
Это расширяющаяся книзу подошва сваи в свайно-ленточном фундаменте. Она должна иметь достаточную площадь, для определения которой нужно знать несущую способность почвы.
На 1 см² должен давить вес, равный половине этого параметра. У суглинистой почвы с повышенной влажностью несущая способность равна 1500 г/см², так что при возведении на ней постройки нужно обеспечить такую площадь подошвы, чтобы на см² давило не более 750 г.
Армирование
Важно правильно рассчитать, сколько ребристой арматуры потребуется закупить для фундамента. Недостаточное ее количество потенциально опасно и делает основание ненадежным. Также нерационально тратить много средств на избыточную арматуру.
Узел опоры пола первого этажа на фундамент
Продухи в ленточном фундаменте
Даже если при строительстве используется обратная засыпка, пол должен опираться в первую очередь на фундамент. В противном случае по прошествии нескольких лет эксплуатации он может потрескаться или просесть. Это связано с движениями подсыпки, создающими усадку.
Продухи
Когда конструкция подразумевает вентилируемый подпол, еще до обустройства основания нужно сделать достаточное число продухов.
Расстояние между ними должно быть равно 2,5 м. Если не позаботиться о продухах вовремя, последующее их устройство потребует значительных ресурсов.
Критически важные узлы фундамента | Строим фундаменты
Критически важные узлы фундамента, на которые должен обратить внимание застройщик
еще до начала строительства здания.
Наши многолетние наблюдения показали, что причиной брака в строительстве чаще всего является именно сам застройщик, который в любом удобном месте хочет сэкономить как на материалах, так и на строителях.
Идея сэкономить – хорошая идея! Но экономить нужно разумно, т.е. не в ущерб качеству будущего здания. Если неразумно сэкономили на внешней отделке – переделали и ничего страшного, кроме перетрат денег.
А вот если неразумно сэкономили на некоторых критически важных узлах фундамента – либо трещины по стенам пойдут (и, более того, сильно снизят рыночную стоимость дома), либо плесень в подполе будет расти, либо другая головная боль появится в процессе эксплуатации дома.
В этой статье мы опишем те узлы фундамента, на которые стоит обращать особое внимание как индивидуальному застройщику, так и строителю.
- Узел опоры фундамента на грунт. Читайте нашу статью «Несущая способность грунтов» и вы будете разбираться для чего делается подошва фундамента. Если говорить вкратце, то площадь опоры фундамента/подошвы на грунт должна быть такой, чтобы на каждый см² грунта приходился вес в 2 раза меньше, чем несущая способность этого грунта. Например, несущая способность для влажного суглинка 1,5кг/см², исходя из этого вы должны сделать площадь основания фундамента/подошвы такой, чтобы на каждый см² грунта приходилось не более 0,75кг.
- Армирование.
О том, как рассчитать нужное количество арматуры для вашего фундамента, читайте в нашей статье «Армирование ленточного фундамента». Разумная экономия в вопросе армирования будет заключаться в том, чтобы заложить именно нужное количество арматуры: меньше нельзя, больше тоже не нужно.
Нам часто задают вопросы частные застройщики: «А можем ли мы использовать ж/б балки, швеллера, ж/б столбы, которые уже есть у застройщика на участке в возведении фундамента?». Уважаемые читатели, можно и камни бросать в бетон в процессе заливки, можно и ж/б балки и столбы туда же бросать, но не уменьшая армирование фундамента ребристой арматурой! Т.е. вы сэкономите немного на бетоне, а армирование всегда должно быть ребристой арматурой в нужном количестве.
- Узел опоры пола первого этажа на фундамент. В последнее время все больше встречается проектов, в которых пол первого этажа сделан грунту (обратная засыпка). При этом опоры пола на фундамент не проектируют, а опирают пол только на обратную засыпку.
В таком случае застройщик рискует получить большие неприятности в будущем, когда подсыпка через 10-15 лет просядет и на полу либо появятся трещины (если пол из плитки/камня), либо пол вообще начнет проседать. Плинтуса в таком случае окажутся в воздухе. Мы советуем всегда продумывать опору пола первого этажа именно на фундамент.
- Продухи. Если у вас не обратная засыпка, а вентилируемый подпол, то обязательно в нужном количестве обустраивайте продухи! Читайте о продухах соответствующую статью в Полезных материалах. Дело в том, что если не сделать продухи до возведения фундамента в нужном количестве (каждые 2,5-3м), то сделать их уже после представляется либо вообще невозможным, либо крайне трудо- и ресурсозатратно.
схема фундамента и пола подвала
Основание дома и узел цокольный являются главными элементами любой конструкции, расположенным между фундаментом и стенами нижней части дома. Прежде всего, он предназначен для защиты строения от холода и проникновения влаги.
Составление проекта сооружения
Перед началом строительных работ необходимо сделать чертеж возводимой постройки, разрабатывая в первую очередь те узлы, которые необходимы для планов сооружения. Таким образом, в схему дома будут главными деталями следующие:
Загрузка …- Цокольный узел, куда включается обустройство фундамента и пол первого этажа дома;
- Узел опирания перекрытий на стены снаружи, включая оконные проемы и пол конструкции;
- Узел карнизный, который включает в себя чердачное перекрытие, если таковое планируется делать в строении.
Необходимо также запланировать узлы сопряжения маршей с перекрытием, узел фундамента под внутренней стеной. Все узлы обозначают на планах, обводя их сплошной тонкой линией.
Для детализации делается выноска или ссылка на другой лист, где обустройство расписывается подробно.
Проектирование цокольного узла начинают с линии чистого пола, гидроизоляции и уровня грунта. Стены и их конструкции показываются на плане по заданию.
Уровень гидроизоляции делается из нескольких слоев рубероида или толя, промазанных битумной мастикой.
В домах, где подвал не предусмотрен, уровень обозначается ниже, чем пол первого этажа на 20 см и выше отмостки на 20 см. то есть, пространство делится наполовину. Горизонтальную защиту от воды лучше делать на стыке стен и основания. Высота цоколя берется минимум 50см.
Особенности обустройства цоколя дома
Хотя цоколь и является главной деталью дома, не всем понятно, зачем он нужен. Его главная задача — в происхождении слова. Переводя итальянское «цокколо» — подножие строения, на котором возвышается конструкция.
Так и для любого сооружения необходимо основание, при этом нет разницы, баня, гараж или хозяйственная постройка предполагается к строительству.
Поскольку основание защищает дом от воды и прочих атмосферных явлений, ему необходимо усиление гидроизоляционными материалами. Узел примыкания цоколя со стенами необходимо тщательно защитить от воздействия воды.
Сделанная защита от воды и слой теплоизоляции не позволят воде и холоду проникнуть внутрь материала основания, тем самым разрушая его. Также не возникнет конденсат, который приводит к избытку сырости, присущей подвальным помещениям.
С визуальной точки зрения, цоколь дома придает дополнительную презентабельность фасаду. Отделывая его разными материалами, имитирующими природные текстуры камней, можно дополнить существующий дизайн дома новыми элементами.
- Обустроенный цоколь позволяет сделать пол теплее в помещениях дома, поскольку есть некоторая воздушная прослойка;
- Циркуляция воздуха в подвале будет значительно лучшей, что продлит срок использования цоколя;
- Отделка фасада и стен делается выше, потому что есть цокольный этаж, что защищает её от намокания и повреждений механического свойства;
- Возможно обустроить полноценный этаж под землей или подвал, расширив полезную площадь дома;
- Если узлы примыкания цоколя и стен первого этажа, его пол, сделаны грамотно, то нагрузка всей конструкции будет равномерно распределена по фундаменту.

Основание дома сможет выполнять свои функции в полном объеме только в том случае, если его обустроить отмосткой для отвода воды. Как правило, её ширина составляет около 30 см больше, чем выступы карнизов кровли.
Подготовка к строительным работам
Цоколь дома выполняет не только декоративные, но и защитные функции. Потому к строительным работам относятся с особым вниманием – перед началом необходимо изучить особенности применяемых технологий и характеристики используемых материалов.
Высота
Типовая высота цоколя имеет около 50-70 сантиметров. Если делать её меньше, то подземный этаж будет малоэффективным, а сделав больше, становится возможным обустройство подвала целого этажа. Тогда высоту берут до полутора метров.
Гидроизоляция
Главным требованием к обустройству цоколя является правильная гидроизоляция, которая не допустит проникновения влаги в материал основания дома.
Особенно это важно в случае деревянного дома, поскольку брус очень уязвим для сырости и подвержен гнилостным процессам.
Вентиляция
Вентиляционные продухи необходимы для правильного воздухообмена в подполье. Как правило, отдушины делают на 15 см выше, чем уровень отмостки.
Все отверстия нужно закрыть стальной сеткой с мелкими ячейками, это не допустит проникновения грызунов и птиц, а также защитит от грязи и пыли.
В зимнее время такие сетки будут надежным барьером от кусочков льда, которые могут попасть внутрь вентиляционной системы. Иногда отдушины нужно прикрывать, тогда следует заранее сделать задвижки на отверстиях.
Стоимость выполнения работ
Довольно часто владельцы ограничены в смете, потому вопрос стоимости обустройства цоколя стоит очень остро. Определить конкретную цифру невозможно, пока не выбраны материалы и их количество, а также место закупки.
При расчете требуется принимать во внимание аренду или приобретение специальных инструментов, доставку материалов к месту строительства, наем рабочей силы, стоимость исходных материалов. Только такие детали помогут определить конкретную стоимость сметы на строительство.
При тщательном планировании всего дома и цокольного узла можно в итоге получить надежную конструкцию, которая прослужит долго, не требуя ремонтно-восстановительных работ.
Варианты цоколя при различных типах фундамента
Обустройство цоколя сильно зависит от фундамента доме. Если для ленточного основания это несущая функция, то при столбчатом основании он присутствует только для гидроизоляции и защиты от холода.
Ленточный фундамент
При ленточном фундаменте дома цоколь можно сделать нескольких видов:
- Монолитный, образующий конструкцию единого типа с основанием, поскольку заливается одновременно с ним;
- Кирпичный, кладку которого делают поверх фундамента.
Такой вариант лучше всего подойдет для дома из дерева; - Из бетонных плит, которые можно уложить поверх фундамента и в дальнейшем использовать как перекрытие.
Свайно-винтовой фундамент
При строительстве сооружения на свайном фундаменте можно выбрать один из следующих вариантов цоколя:
- Навесной, который требует обрешетки по всему периметру дома. На ней крепится материал для облицовки. Все работы легко выполнимы собственноручно, но если нужен дом с теплыми подпольями, такой навес не подойдет;
- Стена между сваями, закрывающая подпол дома;
- При мелкозаглубленных фундаментах стоится по периметру ленточное основание и на него происходит укладка кирпичной стены.
Ширина цоколя
Каким бы ни был фундамент, цоколи домов можно разделить на следующие виды:
- западающий, при котором стена значительно шире, чем само основание;
- выступающий, когда основание шире, чем стены;
- ровный, единой плоскости, при котором стена и основание находятся наравне.

Западающий цоколь признан самым долговечным, поскольку он укрыт конструкцией от осадков. Все стоки минуют подножия, и гидроизоляция почти не затрагивается. Также этот вариант поможет сэкономить на смете.
Отделка цоколя снаружи
Отделка нужна не только для красоты. Облицовки основания придает его защитным функциям полноценность, поскольку все современные материалы для отделки оснащены добавками для долговечности такой отделки.
К тому же, заодно проходит процесс утепления цоколя.
Самым распространенным и экономным вариантом отделки является сайдинг. Его отличает высокое качество и долгий срок службы.
Порядок монтажа сайдинга
Облицовка цоколя сайдингом происходит в следующей последовательности:
- Делается обрешетка из металлического профиля. При монтаже тщательно проверяют каждый узел. Можно применить и каркас из дерева, но такая обрешетка будет не очень долго служить;
- Закладывается теплоизоляция между планками, а также гидроизоляционный слой.
Если строительство дома делается из дерева, то особенно тщательно нужно отделать каждый стык и узел; - На 8 см выше обрешетки ставится стартовая планка, после которой можно крепить и угловые планки для монтажа. Важно проверить их ровность по вертикали;
- Панель сайдинга ставят на начальную планку и крепят саморезами;
- В планку ставится вторая панель, прикрепляясь к первой. По такому способу проходят все стены по периметру;
- Делается финишная отделка;
- Ставят последнюю панель, обрезая её до нужного размера;
- Монтируют угловые элементы.
После этого облицовка дома заканчивается. Как правило, процесс занимает несколько дней. Лучше все отделочные работы проводить в теплое и сухое время года.
Заключение
Цоколь дома выполняет несколько важный функций. Для того чтобы все работы проходили успешно, нужно делать строительство на каждом этапе с соблюдением правил, обращая особое внимание на узлы конструкции.
Стройку лучше делать летом, не оставляя незаконченной на зиму.
YouTube responded with an error: The request cannot be completed because you have exceeded your <a href="/youtube/v3/getting-started#quota">quota</a>.
Фундамент дома из газобетона: узлы и элементы
+7 (83631) 5-77-89, +7 (843) 554-33-33, +7 987 281 64 63Связаться с нами
Опирание кладки на цоколь из бетонных блоков в зданиях с подпольем. Перекрытие по деревянным балкам.
- Ячеистобетонные блоки
- Деревянная балка
- Гидроизоляция
- Доборный ячеистобетонный блок
- Обертка толем
- Фундаментный блок
- Вентиляционное отверстие
- Растворный шов
Опирание кладки на цоколь из монолитного железобетона и ячеистобетонных блоков.
Перекрытие из сборных железобетонных плит.- Ячеистобетонные блоки
- Сборное железобетонное перекрытие
- Гидроизоляция
- Доборный ячеистобетонный блок
- Теплоизоляционный вкладыш
- Штукатурка по сетке
- Фундамент из монолитного бетона
- Клеевой шов на основе Биктон Клеб.
- Растворный шов
- Вентиляционное отверстие
- Воздухозащитная пленка
Опирание кладки на цоколь из монолитного бетона в зданиях с полами по грунту.
- Ячеистобетонный блок
- Наружный отделочный слой
- Гидроизоляция
- Толь
- Теплоизоляционный вкладыш
- Песчаная подсыпка
- Фундамент для монолитного бетона
- Клеевой шов на основе Биктон Клеб
- Растворный шов
- Цементно песчаная стяжка
- Пароизоляция
- Жесткий или полужесткий утеплитель
- Анкер
- Монолитная железобетонная плита
Опирание кладки на цоколь из бетонных фундаментных блоков с монолитным поясом и утеплением изнутри
- Ячеистобетонный блок Биктон
- Сборное железобетонное перекрытие
- Гидроизоляция
- Фундаментный блок
- Теплоизоляционный вкладыш
- Наружный отделочный слой
- Монолитный железобетонный пояс
- Вентиляционное отверстие
- Воздухозащитная пленка
- Жесткий или полужесткий утеплитель
Опирание кладки на цоколь из ячеистобетонных блоков облицованных кирпичом
- Ячеистобетонные блоки Биктон
- Сборное ЖБ перекрытие
- Гидроизоляция
- Доборный ячеистобетонный блок
- Теплоизоляционный вкладыш
- Кирпич
- Фундамент из монолитного бетона
- Сетка из нержавеющей проволоки
- воздушный вентилируемый зазор
- вентиляционное отверстие
- воздушная пленка
Опирание кладки на фундамент внутренней стены
- Ячеистобетонный блок Биктон
- Сборное железобетонное перекрытие
- Гидроизоляция
- Растворный шов
- Внутренний отделочный слой
- Бетонная подготовка
Закрыть
Наши менеджеры скоро свяжутся с Вами.
Наши менеджеры скоро свяжутся с Вами.
ЗакрытьЗакрыть
Наши менеджеры скоро свяжутся с Вами.
ЗакрытьЗакрыть
Закрыть
Закрыть
ОтменитьКаталог продукции
Типовые узлы — Изобент
Применение бентонитовой гидроизоляции
Схема укладки бентонитовых матов под фундаментной плитой
Схема перехода горизонтальной гидроизоляции на вертикальную поверхность
Технологический промежуток бетонирования фундаментной плиты
Переход горизонтальной изоляции на плиту фундамента в случае плиты с выступом
Узел гидроизоляции в случае, когда плита пола выше толщи фундамента
Переход горизонтальной гидроизоляции на вертикальную поверхность с использованием бентонитовой шпатели
Установка бентонитовых матов под температурный швом в фундаментальной плите (с иполльзованием внешней гидрошпонки)
Установка бентонитовых матов под температурным швом в фундаментной плите (с использованием внутренней гидрошпонки)
Гидроизоляция балки усиления фундамента
Изоляция балки усиления фундамента
Устройство гидроизоляции перехода инженерной коммуникации
Устройство гидроизоляции группы переходов инженерной коммуникации
Схема уплотнения отверстия после снятия опалубки
Крепление мата ИЗОБЕНТ по вертикали
Узлы крепления матов к стене фундамента ниже уровня грунта
Изоляция нижней части приямка шахт лифтов и других заглубленных конструкций
Изоляция нижней части приямка шахт лифтов и других заглубленных конструкций
Деталь гидроизоляции в зоне шахты лифта
Гидроизоляция фундамента
Схема гидроизоляции свайного фундамента
Изоляция нижней части приямка шахт лифтов и других заглубленных конструкций
Система слоев изоляции нижней части полигона
Узел фундамента на слабых и сильносжимаемых грунтах — Студопедия
Защита подземной части здания от грунтовых вод.
Защита здания от грунтовой сырости.
Защита подземной части здания от грунтовых вод и сырости
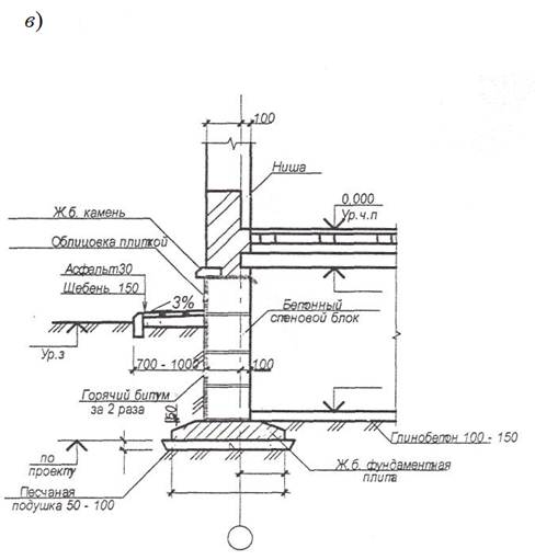
Для защиты стен зданий без подвалов от грунтовой сырости под верхней поверхностью фундамента укладывают горизонтальную гидроизоляцию из двух слоев гидроизола, изопласта, бикроста или слоя цементного раствора состава 1:2 толщиной 20-30 мм на 150-200 мм ниже пола первого этажа и 150-200 мм выше уровня отмостки. При полах по грунту в местах соприкосновения цоколя с грунтом на участке от уровня горизонтальной гидроизоляции до уровня подготовки под пол устраивают вертикальную гидроизоляцию обмазкой наружной стены горячим битумом за два раза. Во внутренних стенах горизонтальную гидроизоляцию укладывают на 100-150 мм ниже пола первого этажа.
В зданиях с подвалами горизонтальную гидроизоляцию укладывают в двух уровнях: нижнюю в уровне пола подвала и верхнюю не менее 150 мм выше уровня отмостки.
Защиту производят устройством вертикальной и горизонтальной гидроизоляции.
Нижний слой горизонтальной гидроизоляции выполняют из 2-х слоев рулонного материала (гидроизол, изол и др.) и располагают в толще пола подвала на бетонной подготовке, пропускают через стены подвала, и заводят на поверхность наружных стен до высоты, превышающей возможный уровень грунтовых вод на 0,5 м.
На гидроизоляционный ковер укладывают пригрузочный слой бетона, уравновешивающий давление воды. Если напор более 0,8 м, то устраивают сплошную железобетонную плиту, защемляемую в стенах подвала.
Верхний слой горизонтальной гидроизоляции (ниже пола первого этажа) укладывают сплошной лентой в наружных и внутренних стенах зданий.
Вертикальную гидроизоляцию наружных стен выполняют с наружной стороны стен подвала путём обмазки полимерно-битумной мастикой или раствором «Полиликс ГС».
Гидроизоляционный ковер, расположенный с наружной стороны стен, защищают от возможных повреждений облицовкой стенкой толщиной 120 мм из обожженного кирпича на цементном растворе.
Проектирование и расчет фундамента, каркаса и кровли в Екатеринбурге
Конструктивный раздел – основа любого проекта здания. От качества его разработки зависит будущая долговечность и надежность вашего дома. Обязательное наличие конструктивных решений в строительной документации прописывается в федеральном законодательстве и основных строительных нормах.
Агентство Строительных Решений осуществляет профессиональную разработку конструктивных решений, включающую проектирование кровли, расчет перекрытия и других несущих конструкций любых зданий.
Как происходит проектирование конструкций здания?
Конструктивный раздел создается на базе архитектурного проекта. В перечень задач по разработке конструктивных решений входят:
- Подбор оптимальных несущих конструкций, их элементов;
- Разработка основных узлов ответственных конструкций;
- Подбор оптимальных по цене и качеству стройматериалов;
- Итоговый нормативный расчет материала.

Проекты в строгомсоответствии с ГОСТ и СНиП
Полный комплекс проектных работ и услуги авторского надзора за строительством
заказать проект
Проработка каждого из пунктов позволяет спроектировать несущие конструкции, которые обеспечат максимальную устойчивость здания, при этом будут наиболее экономичными.
Так, например, для разных климатических зон России проекты фундаментов домов могут различаться. Проектирование свайного фундамента будет уместно на обводненных почвах, тогда как ленточный на глинистых, каменных. При этом стоимость их монтажа существенно различается — ленточный фундамент расчет которого включает обработку цены арматуры и бетона, всегда несколько дороже свайного.
Для чего нужен конструктивный расчет несущих конструкций и элементов здания?
Проектирование и расчет фундамента, перекрытий и каркаса здания в целом, необходим для строителей, которые будут заниматься возведением здания по разработанным чертежам. Но прежде всего этот раздел необходим Вам, ведь это прежде всего ваша безопасность.
Кроме того, правильно разработанные конструктивные решения обеспечивают подбор оптимальных вариантов несущих конструкций для вашего участка и проекта здания в целом.
Агентство Строительных Решений — выгодное сотрудничество и гарантия результата!
СВЯЗАТЬСЯ С НАМИ
В разделе рассчитаны и обоснованы:
- Технические решения, обеспечивающие нужную прочность, надежность, пространственную неизменяемость и устойчивость домов.
- Отдельно проработаны чертежи наиболее сложных узлов и элементов.
- Указаны спецификации используемых материалов (технические характеристики, марки, ГОСТы).
Данные чертежи детально производят проект фундамента и каркаса здания.
Условное содержание конструктивного раздела проекта здания- Общие данные о здании, участке;
- Схематическое размещение фундамента, армирование, опалубка;
- Сечения и разрезы фундамента;
- Схема размещения перекрытий;
- Схема размещения монолитных поясов, армирование, опалубка;
- Схема размещения балок;
- Основные детали и узлы конструкции;
- Схема размещения крылец;
- Спецификация материалов и конструкций.

Расчет фундамента дома
Чтобы узнать приблизительную стоимость работ, мы предлагаем вам воспользоваться нашим строительным калькулятором расчета фундамента. Предположим, вам необходимо произвести расчет свайного фундамента. Для этого просто введите необходимые параметры и нажмите «рассчитать».
Хотите построить действительно надежный, устойчивый и долговечный дом, который будет радовать ваших внуков и правнуков без лишних затрат? Обращайтесь в Агентство Строительных Решений и наши профессиональные инженеры помогут вам в этом!
Node.js Foundation и JS Foundation объединяются для создания OpenJS Foundation
Недавно созданный фонд для ускорения следующей фазы роста экосистемы JavaScript
САММИТ РУКОВОДСТВА С ОТКРЫТЫМ ИСТОЧНИКОМ, Хаф-Мун-Бэй, Калифорния — 12 марта 2019 г. — Фонд Node.js и JS Foundation объявили сегодня о своем слиянии и создании OpenJS Foundation.
Миссия OpenJS Foundation — поддерживать здоровый рост JavaScript и веб-технологий, предоставляя нейтральную организацию для размещения и поддержки проектов, а также совместно финансируя мероприятия, которые приносят пользу экосистеме в целом.
OpenJS Foundation состоит из 31 проекта JavaScript с открытым исходным кодом, включая Appium, Dojo, jQuery, Node.js и webpack.
«Это захватывающий шаг вперед для всего сообщества JavaScript с открытым исходным кодом, так как он усиливает влияние наших коллективных усилий в рамках единого фонда», — сказал Дэйв Метвин, председатель Технического консультативного комитета JS Foundation. «Новый объединенный фонд может лучше служить сообществу и его участникам для развития экосистемы JavaScript с точки зрения технологий и стандартов.”
OpenJS Foundation поддерживают 30 корпоративных и конечных пользователей, включая GoDaddy, Google, IBM, Joyent, PayPal и Microsoft. Эти участники признают взаимосвязанный характер экосистемы JavaScript и важность предоставления нейтрального дома для проектов, представляющих значительную общую ценность.
«OpenJS Foundation обеспечит улучшенное участие участников и сообщества, создав один главный дом для проектов в рамках открытого сообщества JavaScript, чтобы обеспечить доступ к ресурсам, которые обеспечивают лучшее сотрудничество и устойчивость», — сказал Майк Долан, вице-президент по стратегическим программам Linux Foundation.
.«Создавая единый динамичный дом для любого проекта JavaScript, OpenJS Foundation может расширить сотрудничество в экосистеме».
JS Foundation и Node.js Foundation уже несколько лет сосуществуют независимо друг от друга. Благодаря взаимосвязанному характеру экосистемы JavaScript обе организации постоянно сближаются в техническом сотрудничестве, включая проведение совместной технической конференции Node + JS Interactive, которая началась в 2018 году, что привело к крупнейшему на сегодняшний день мероприятию с увеличением количества мероприятий на 25%. посещаемость за предыдущий год.
Процесс слияния начался шесть месяцев назад и включал достижение консенсуса в сообществе, а также тесное сотрудничество с Linux Foundation и руководящими советами Node.js Foundation и JS Foundation. Сегодняшнее объявление знаменует поворотный момент в этом процессе, так как теперь существует новая структура управления, и сообщество начнет работать под управлением OpenJS Foundation.
OpenJS Foundation устранит операционное дублирование между двумя организациями, упростит опыт для компаний, которые оказывают существенную финансовую поддержку через членство, и скоординирует усилия в рамках сообщества JavaScript и связанных с ним органов по стандартизации.
Приглашаем новых участников и предложения по новым проектам присоединиться к нам в любое время.
Дополнительные ресурсы
О OpenJS Foundation
OpenJS Foundation стремится поддерживать здоровый рост экосистемы JavaScript и веб-технологий, предоставляя нейтральную организацию для размещения и поддержки проектов, а также совместного финансирования деятельности на благо сообщества в целом. OpenJS Foundation состоит из 29 проектов JavaScript с открытым исходным кодом, включая Appium, Dojo, jQuery и Node.js и webpack и поддерживается 30 корпоративными и конечными пользователями, включая GoDaddy, Google, IBM, Joyent, PayPal и Microsoft. Эти участники признают взаимосвязанный характер экосистемы JavaScript и важность обеспечения центрального дома для проектов, представляющих значительную общую ценность.
###
Node.js Foundation является лицензированным знаком Node.js Foundation. Node.js является товарным знаком Joyent, Inc.
и используется с ее разрешения. JS Foundation — зарегистрированная торговая марка JS Foundation.
Контактная информация для СМИ
Сара Конвей
978-578-5300
[email protected]
JS Foundation и Node.js Foundation объединяют усилия
Людям нравится подшучивать над JavaScript. «Это ненастоящий язык! Кто в здравом уме стал бы использовать его на сервере?» Ответы таковы: это настоящий язык, а JavaScript — один из самых популярных языков.В течение многих лет серверная часть предприятия была разделена на два лагеря: JS Foundation и Node.js Foundation. Это было немного глупо. Теперь они объединяются в одну организацию: OpenJS Foundation.
На саммите лидеров открытого исходного кода в Хаф-Мун-Бэй, Калифорния, Linux Foundation объявил долгожданную новость о слиянии двух возможностей JavaScript. Миссия недавно созданного OpenJS Foundation — поддерживать рост JavaScript и связанных с ним веб-технологий, обеспечивая нейтральную организацию для размещения и поддержки проектов, а также финансирования деятельности по развитию.
Он состоит из 31 проекта JavaScript с открытым исходным кодом, включая Appium, Dojo, jQuery, Node.js и webpack.
На саммите Джори Берсон, представитель JS Foundation, сказал, что привлечение «новых участников из сообщества разработчиков Node. Js в наши проекты было довольно большим преимуществом, и без Node невозможно представить себе полную картину экосистемы».
Майлс Боринс со стороны Node.JS ответил: «С точки зрения Node.js мы хотим участвовать в фонде для нескольких проектов.Раньше мы пытались сделать это в рамках нашего собственного фонда через инкубационный процесс. И мы не очень успешны. Мы также хотели поделиться и усовершенствовать некоторые из лучших практик в Node js. Мы проделали большую работу над открытым управлением, а также над новыми способами обеспечения прозрачности на собраниях [после почти гражданской войны из-за проблем с лидерством в 2017 году] и в общении. Мы хотели взять некоторые из этих лучших практик и поделиться ими с другими проектами. И самое главное, мы хотели найти устойчивый подход и заложить фундамент, который сможет пережить проект.
Эти двое работали над этим слиянием более шести месяцев, проводя еженедельные глобальные встречи. Это было непросто. Им пришлось иметь дело с очень «спорными темами». Но, в конце концов, им удалось добиться консенсус.
Более 30 компаний, включая Google, IBM, Joyent и Microsoft, объединились, чтобы сформировать этот новый фонд с открытым исходным кодом.
Я думаю, что этот шаг принесет пользу как разработчикам JavaScript, так и пользователям. Как вы думаете ? Дайте нам знать об этом в комментариях.
Истории по теме:
Обновления группы Node.js Foundation. Поскольку в Node.js столько всего происходит… | автор: Node.js
Поскольку в сообществе Node.js и с Фондом Node.js так много всего происходит, мы хотели воспользоваться моментом, чтобы напомнить сообществу, кто из Linux Foundation что делает в поддержку Node.js Foundation . Пожалуйста, найдите обновление ниже:
Майк Долан, исполняющий обязанности исполнительного директора (GitHub: @mkdolan, mdolan @ linuxfoundation.
org, Twitter: @mdolan
Майк является временным исполнительным директором фонда Node.js и вице-президентом по стратегическим программам, поддерживающим проекты с открытым исходным кодом и юридические программы в Linux Foundation.
Кейтлин Барнард, Node.js Foundation Marketing (GitHub: kbarnard10, [email protected] Twitter: @ kaitlyn_barnard)
Кейтлин уже курирует контент для JS Devs Zone JS Foundation, ежемесячный информационный бюллетень и взаимодействие с участниками. Она присоединилась к Node.js Foundation, чтобы взять на себя ежемесячную рассылку новостей, обновления веб-сайтов. Она также будет тесно сотрудничать с Рэйчел Ромофф в области контент-маркетинга.
Аманда Эннис, Node.js Foundation Social Media (GitHub: OfficialLinuxAmanda, [email protected], Twitter: @ Linux_Amanda )
Аманда имеет более чем 6-летний опыт работы с социальными сетями, как платными, так и органический.
Аманда будет работать в социальных сетях и сотрудничать с командой маркетинга и Node.js по контенту.
Рэйчел Ромофф, по связям с общественностью Фонда Node.js (Github: @Rromoff, [email protected], Twitter: @rachelromoff)
В качестве менеджера по связям с общественностью в Node.js Foundation Рэйчел продолжит создавать и выполнять коммуникационные программы, в том числе возможности выступлений, отношения со СМИ и курирование контента в блогах Node.js Foundation и Node.js Collection. Она является ключевой частью команды Node.js по социальным сетям и цифровому маркетингу.
Брайан Уорнер, Node.js Foundation Operations (GitHub: brianwarner, [email protected], Twitter: @realbrianwarner)
Брайан отвечает за текущие операции. Это включает в себя как повседневную работу, так и обеспечение того, чтобы логистические аспекты JSF и Node.js Foundation были готовы к слиянию.
Сара Конвей (Github: @SarahKConway, [email protected], Twitter: @SarahKConway) продолжает работать старшим руководителем маркетинговых коммуникаций в Node.
js Foundation, координируя маркетинговую стратегию и выполнение, включая поддержку слияния.
Трейси Ли (GitHub: @ ladyleet, [email protected], Twitter: @ladyleet) продолжает служить нашим связующим звеном с сообществом Node.js.
Если у вас есть вопросы, не стесняйтесь обращаться к нам! Мы очень рады тому, что нас ждет в 2019 году и чего мы обязательно добьемся вместе. Если вы когда-нибудь сомневаетесь в том, к кому обратиться с вопросом, свяжитесь со всеми нами по электронной почте info @ nodejs.орг.
npm Архив блога: Node + JS Foundation
Сегодня Node.js и JS Foundations объявили о своем намерении объединиться.
tl; dr — Это хорошая вещь. Я в восторге.
Сообщество JavaScript — это большая и разнообразная группа людей, занимающихся множеством вещей. Большинство компаний в мире используют JavaScript, и в npm у нас есть уникальное представление о форме и масштабах этой экосистемы.
Подавляющее большинство пользователей JavaScript — это люди, создающие веб-сайты с использованием современных фреймворков и инструментов, встроенных в Node.js. Они пытаются выполнить свою работу, и им нужны оптимизированные инструменты, которые сделают их более способными выполнять свою работу. Многие из них не являются тем, что мы могли бы назвать «разработчиками узлов» несколько лет назад (хотя многие таковы). Их веб-сайты работают на всех серверных платформах, включая, помимо прочего, Node.js, и все они должны отправлять веб-сайт в браузеры, что означает JavaScript.Node.js является доминирующей платформой для создания инструментов для этого, а npm — это место, где платформы, модули и инструменты распространяются и совместно используются.
Разделение на «back-end» и «front-end» JavaScript имеет все меньше и меньше смысла в свете того, как это сообщество росло за последние 9 лет с момента выпуска Node.js. (Вау, это действительно так давно? Время летит незаметно.
) Быстрорастущее сообщество означает, что большинство людей, создающих веб-сайты, используя Node.js-инструменты и библиотеки и фреймворки из npm, занимаются этим менее двух лет . Разделение могло казаться нормальным для тех из нас, кто участвовал в 2009 году, но он кажется неестественным и неловким большинству, кто сегодня работает на местах. Это просто JavaScript. Он работает на серверах, в командной строке и в браузерах, и вы используете npm и множество других инструментов, которые он предоставляет. Babel — это интерфейсный инструмент или вспомогательный инструмент? Почему есть две группы, когда в основном одни и те же люди?
Узел.js, более интегрированный с более широким сообществом JS, означает, что проект может более эффективно отстаивать варианты использования на стороне сервера и может получить лучшую обратную связь от тех, кто полагается на Node.js в плане поддержки инструментов, которые они используют для создания веб-сайтов.
Как одна из компаний, занимающихся разработкой JavaScript, мы в npm очень рады видеть, как две основные основы JavaScript объединяют усилия, чтобы создать форум для всего сообщества JavaScript с открытым исходным кодом.
Последовательность управления, процессов и политик может облегчить разработчикам разрозненных проектов JavaScript совместную работу и координацию, устраняя ненужные препятствия для инноваций.У обоих фондов уже есть устоявшаяся история повторения своих процессов. Я надеюсь, что этот новый сдвиг дает возможность оглянуться на то, что сработало, а что не сработало и что можно улучшить, работая вместе.
От себя лично: я связался с Node.js в первую очередь потому, что хотел жить в мире, где программирование клиентской части, серверной части, инструментов и инфраструктуры не требовало постоянной перестройки моего мозга в целом. новый язык. Я не мог предсказать, как npm станет настолько актуальным для мира веб-разработки, и это больше, чем я мог надеяться.Есть много открытых вопросов о том, как именно будет выглядеть объединенный фонд, но я очень рад, что все движется в этом направлении.
html — установка Foundation не работает из-за недостаточного количества узловых модулей?
я впервые здесь .
.
Я пытаюсь установить фундаментные сайты с помощью ZURB.Раньше я использовал его, но теперь что-то не так, что я пытался выяснить в течение довольно долгого времени.
Я думаю, что мог что-то сделать, чтобы испортить установку узла или что-то в этом роде, но я не уверен. Я собираюсь показать вам, что я получаю в терминале, когда пытаюсь установить с помощью основного интерфейса командной строки.
λ фундамент -v
Foundation CLI версии 2.2,5
Дж. Кларк @ JC-PC ~ / documents / projects / godaddyv2 (мастер)
λ фундамент новый
? Что вы строите сегодня? Веб-сайт (Фонд для сайтов)
? Как называется проект? (без пробелов) godaddyv2
? Какой шаблон вы хотите использовать? Базовый шаблон: включает компилятор Sass
./ | ,
, / | / \ / | / | Благодарим за использование ZURB Foundation для сайтов!
/ | / | / | -------------------------------------------
| ___ | | ___ | Создадим новый проект.| ___ / Это не должно занять больше минуты.
| - [O] - [O] - |
| ___, |
| .
.. |
\ __________ /
Скачивание шаблона проекта...
Готово!
Установка зависимостей ...
-
> узел-sass @ 3.13.1 установите C: \ Users \ J. Кларк \ документы \ проекты \ godaddyv2 \ godaddyv2 \ node_modules \ gulp-sass \ node_modules \ node-sass
> скрипты узлов / install.js
Загрузка двоичного кода с https://github.com/sass/node-sass/releases/download/v3.13.1/win32-x64-64_binding.node
Не удается загрузить "https://github.com/sass/node-sass/releases/download/v3.13.1 / win32-x64-64_binding.node ":
Ошибка HTTP 404: не найдено
Подсказка: если github.com недоступен в вашем регионе
попробуйте установить прокси через HTTP_PROXY, например
экспорт HTTP_PROXY = http: // example.com: 1234
или настройте прокси-сервер npm через
npm config установить прокси http://example.com:8080
> [email protected] после установки C: \ Users \ J. Кларк \ документы \ проекты \ godaddyv2 \ godaddyv2 \ node_modules \ gulp-sass \ node_modules \ node-sass
> скрипты узла / сборка.js
Здание: C: \ Program Files \ nodejs \ node.
exe C: \ Users \ J. Кларк \ документы \ проекты \ godaddyv2 \ godaddyv2 \ node_modules \ gulp-sass \ node_modules \ node-sass \ node_mo
dules \ node-gyp \ bin \ node-gyp.js перестроить --verbose --libsass_ext = --libsass_cflags = --libsass_ldflags = --libsass_library =
информация gyp это сработало, если оканчивается на ОК
gyp verb cli ['C: \\ Program Files \\ nodejs \\ node.EXE',
gyp глагол cli 'C: \ Users \ J. Кларк \ документы \ проекты \ godaddyv2 \ godaddyv2 \ node_modules \ gulp-sass \ node_modules \ node-sass \ node_modules \ node-gyp \
\ bin \\ node-gyp.js ',
gyp глагол cli 'перестроить',
gyp глагол cli '--verbose',
глагол gyp cli '--libsass_ext =',
глагол gyp cli '--libsass_cflags =',
глагол gyp cli '--libsass_ldflags =',
глагол gyp cli '--libsass_library =']
gyp с использованием node-gyp @ 3.8.0
информация gyp с использованием [email protected] | win32 | x64
команда gyp глагола rebuild []
команда gyp verb clean []
gyp глагол очистить удаление каталога сборки
команда gyp verb configure []
gyp verb check проверка python для исполняемого файла Python "python2" в PATH
глагол gyp `which` не удалось Ошибка: не найдено: python2
gyp глагол `which` завершился ошибкой при getNotFoundError (C: \ Users \ J.
Кларк \ документы \ проекты \ godaddyv2 \ godaddyv2 \ node_modules \ gulp-sass \ node_modules \ node-sass \ n
ode_modules \ node-gyp \ node_modules \ which \ which.js: 13:12)
глагол gyp `which` не удалось на F (C: \ Users \ J. Clark \ documents \ projects \ godaddyv2 \ godaddyv2 \ node_modules \ gulp-sass \ node_modules \ node-sass \ node_modules \ nod
e-gyp \ node_modules \ which \ which.js: 68: 19)
gyp глагол `which` не прошел в E (C: \ Users \ J.Кларк \ документы \ проекты \ godaddyv2 \ godaddyv2 \ node_modules \ gulp-sass \ node_modules \ node-sass \ node_modules \ nod
e-gyp \ node_modules \ which \ which.js: 80: 29)
gyp глагол `which` не удалось в C: \ Users \ J. Кларк \ документы \ проекты \ godaddyv2 \ godaddyv2 \ node_modules \ gulp-sass \ node_modules \ node-sass \ node_modules \ node-g
yp \ node_modules \ который \ which.js: 89: 16
gyp глагол `which` не удалось в C: \ Users \ J.Кларк \ документы \ проекты \ godaddyv2 \ godaddyv2 \ node_modules \ gulp-sass \ node_modules \ node-sass \ node_modules \ node-g
yp \ node_modules \ which \ node_modules \ isexe \ index.
js: 42: 5
gyp глагол `which` не удалось в C: \ Users \ J. Кларк \ документы \ проекты \ godaddyv2 \ godaddyv2 \ node_modules \ gulp-sass \ node_modules \ node-sass \ node_modules \ node-g
yp \ node_modules \ which \ node_modules \ isexe \ windows.js: 36: 5
gyp глагол `which` не удалось выполнить при FSReqWrap.oncomplete (fs.js: 152: 21)
глагол gyp `which` не удалось python2 {Ошибка: не найдено: python2
gyp глагол `which` не удалось получить при getNotFoundError (C: \ Users \ J. Clark \ documents \ projects \ godaddyv2 \ godaddyv2 \ node_modules \ gulp-sass \ node_modules \ node-sass \ n
ode_modules \ node-gyp \ node_modules \ which \ which.js: 13:12)
gyp глагол `which` не удалось на F (C: \ Users \ J.Кларк \ документы \ проекты \ godaddyv2 \ godaddyv2 \ node_modules \ gulp-sass \ node_modules \ node-sass \ node_modules \ nod
e-gyp \ node_modules \ which \ which.js: 68: 19)
глагол gyp `which` не удалось на E (C: \ Users \ J. Clark \ documents \ projects \ godaddyv2 \ godaddyv2 \ node_modules \ gulp-sass \ node_modules \ node-sass \ node_modules \ nod
e-gyp \ node_modules \ which \ which.
js: 80: 29)
gyp глагол `which` не удалось в C: \ Users \ J.Кларк \ документы \ проекты \ godaddyv2 \ godaddyv2 \ node_modules \ gulp-sass \ node_modules \ node-sass \ node_modules \ node-g
yp \ node_modules \ который \ which.js: 89: 16
gyp глагол `which` не удалось в C: \ Users \ J. Кларк \ документы \ проекты \ godaddyv2 \ godaddyv2 \ node_modules \ gulp-sass \ node_modules \ node-sass \ node_modules \ node-g
yp \ node_modules \ which \ node_modules \ isexe \ index.js: 42: 5
gyp глагол `which` не удалось в C: \ Users \ J.Кларк \ документы \ проекты \ godaddyv2 \ godaddyv2 \ node_modules \ gulp-sass \ node_modules \ node-sass \ node_modules \ node-g
yp \ node_modules \ which \ node_modules \ isexe \ windows.js: 36: 5
глагол gyp `which` не удалось выполнить на FSReqWrap.oncomplete (fs.js: 152: 21)
gyp глагол `which` failed stack:
gyp глагол `which` failed 'Ошибка: не найдено: python2 \ n в getNotFoundError (C: \\ Users \\ J.Кларк \ документы \ проекты \ godaddyv2 \ godaddyv2 \ node_modu
les \\ gulp-sass \\ node_modules \\ node-sass \\ node_modules \\ node-gyp \\ node_modules \\ which \\ which.
js: 13: 12) \ n в F (C: \\ Users \\ Дж. Кларк \ документы \ проекты
\\ godaddyv2 \\ godaddyv2 \\ node_modules \\ gulp-sass \\ node_modules \\ node-sass \\ node_modules \\ node-gyp \\ node_modules \\ which \\ which.js: 68: 19) \ n в E (C: \ Использовать
rs \\ J. Clark \ Documents \ projects \ godaddyv2 \ godaddyv2 \ node_modules \ gulp-sass \ node_modules \ node-sass \ node_modules \ node-gyp \ node_modules \ which \\ w
хич.js: 80: 29) \ n в C: \ Users \ J. Clark \ documents \ projects \ godaddyv2 \ godaddyv2 \ node_modules \ gulp-sass \ node_modules \ node-sass \ node_modules \ no
de-gyp \\ node_modules \\ which \\ which.js: 89: 16 \ n в C: \\ Users \\ J. Кларк \ документы \ проекты \ godaddyv2 \ godaddyv2 \ node_modules \ gulp-sass \ node_modules
\\ node-sass \\ node_modules \\ node-gyp \\ node_modules \\ which \\ node_modules \\ isexe \\ index.js: 42: 5 \ n в C: \\ Users \\ J. Кларк \ документы \ проекты \ годаддыв2 \
\ godaddyv2 \\ node_modules \\ gulp-sass \\ node_modules \\ node-sass \\ node_modules \\ node-gyp \\ node_modules \\ which \\ node_modules \\ isexe \\ windows.
js: 36: 5 \ n в точке F
SReqWrap.oncomplete (fs.js: 152: 21) ',
глагол gyp `which` отказавший код: 'ENOENT'}
gyp verb check проверка python для исполняемого файла Python "python" в PATH
gyp глагол `который` заменил python C: \ Users \ J.Кларк \ AppData \ Local \ Programs \ Python \ Python37-32 \ python.EXE
gyp ERR! ошибка настройки
gyp ERR! Ошибка стека: сбой команды: C: \ Users \ J. Clark \ AppData \ Local \ Programs \ Python \ Python37-32 \ python.EXE -c import sys; напечатайте "% s.% s.% s"% sys.versio
n_info [: 3];
gyp ERR! Файл стека "<строка>", строка 1
gyp ERR! stack import sys; напечатайте "% s.gyp ERR! stack SyntaxError: недопустимый синтаксис
gyp ERR! куча
gyp ERR! стек в ChildProcess.exithandler (child_process.js: 289: 12)
gyp ERR! стек в ChildProcess.emit (events.js: 182: 13)
gyp ERR! стек в mightClose (internal / child_process.js: 961: 16)
gyp ERR! стек в Process.ChildProcess._handle.onexit (internal / child_process.js: 250: 5)
gyp ERR! Система Windows_NT 10.0.17134
gyp ERR! команда "C: \ Program Files \ nodejs \ node.
exe "" C: \\ Пользователи \\ J. Кларк \ документы \ проекты \ godaddyv2 \ godaddyv2 \ node_modules \ gulp-sass \ node_mod
ules \\ node-sass \\ node_modules \\ node-gyp \\ bin \\ node-gyp.js "" rebuild "" --verbose "" --libsass_ext = "" --libsass_cflags = "" --libsass_ldflags = "" --libsass_lib
rary = "
gyp ERR! cwd C: \ Users \ J. Кларк \ документы \ проекты \ godaddyv2 \ godaddyv2 \ node_modules \ gulp-sass \ node_modules \ node-sass
gyp ERR! узел -v v10.9.0
gyp ERR! узел-gyp -v v3.8.0
gyp ERR! не в порядке
Сбой сборки с кодом ошибки: 1
При установке возникли проблемы.✓ Создана новая папка проекта.
✗ Узловые модули не установлены. Попробуйте запустить npm install вручную.
✓ Компоненты Bower установлены.
После того, как вы решите указанные выше проблемы, запустите Foundation Watch, находясь в папке godaddyv2. Я очень признателен за вашу помощь в устранении этой проблемы. Кажется, я не могу найти никого, у кого была бы эта проблема, и это меня уже давно беспокоит
Node.
js Foundation добавит Express в свою программу инкубатораФонд Node.js добавит Express в свою программу инкубатора
САН-ФРАНЦИСКО, 10 февраля 2016 г. — Node.js Foundation, консорциум, возглавляемый сообществом и поддерживаемый отраслью, для продвижения разработки Node.js, о которой сегодня объявили Express, самой популярной платформе веб-серверов Node.js, и некоторые из составляющих ее модулей находятся на пути к тому, чтобы стать новым инкубационным проектом Фонда.
Благодаря более чем 53 миллионам загрузок за последние два года, Express стал одним из ключевых инструментов для создания веб-приложений, а его стабильность важна для многих пользователей Node.js, особенно тех, которые только начинают работать с платформой. Express также поддерживает некоторые из наиболее значительных проектов, поддерживающих Node.js, включая kraken.js, безопасный и масштабируемый уровень, который расширяет Express и активно используется предприятиями.
Kraken.js был открыт PayPal в 2014 году. Он также лежит в основе Sails.js, веб-фреймворка, который упрощает создание пользовательских приложений Node.js корпоративного уровня, и Loopback, фреймворка Node.js API.
«Этот фреймворк критически важен для значительной части многих пользователей Node.js», — сказал Майкл Роджерс, менеджер сообщества Node.js Foundation. «Включение этого проекта в Node.js Foundation под открытым управлением позволит ему оставаться надежным выбором для многих предприятий и пользователей, гарантируя при этом сохранение здоровой экосистемы конкурирующих подходов к решению проблем, которые решает Express.”
«Работа по разработке и сопровождению Express была огромным активом для сообщества», — сказал Род Вагг, директор по Node в NodeSource и директор технического руководящего комитета фонда Node.js. «С 5 миллионами загрузок пакетов за последний месяц стабильность этого проекта, который получит огромный импульс благодаря открытому управлению, очень важна для усилий Фонда Node.
js по поддержке Node.js как технологии и экосистемы разработчиков. . »
«IBM стремится не только к развитию и поддержке Node.js, но продвигать открытое управление для фреймворков, которые позволяют разработчикам на Node.js работать умнее, быстрее и гибче », — сказал Тодд Мур, вице-президент IBM по открытым технологиям. «Мы очень рады, что« Экспресс »представлен как инкубируемый проект высшего уровня Фонда. У Express светлое будущее и новый долгосрочный дом, который обеспечит ресурсы, надежность и актуальность Express для глобального сообщества разработчиков Node.js. »
Активы, относящиеся к Express, вносятся в Node.js Foundation компании IBM.
Программа-инкубатор Node.js Foundation была запущена в прошлом году. Проекты в рамках программы инкубатора Фонда Node.js получают помощь и наставничество со стороны Технического руководящего комитета Фонда и соответствующих рабочих групп. Программа инкубатора предназначена для поддержки многих потребностей пользователей Node.
js в поддержании конкурентоспособной и надежной экосистемы.
Node.js используется десятками тысяч организаций в более чем 200 странах и насчитывает более 3 миллионов активных пользователей в месяц.Это среда выполнения, которую выбирают для высокопроизводительных приложений с малой задержкой, включая корпоративные приложения, роботов, механизмы API, облачные стеки и мобильные веб-сайты.
Фонд состоит из разнородной группы компаний, включая членов Platinum Famous, IBM, Intel, Joyent, Microsoft, PayPal и Red Hat. Участники уровня Gold включают GoDaddy, NodeSource и Modulus / Progress Software, а участники уровня Silver — Apigee, Codefresh, DigitalOcean, Fidelity, Groupon, nearForm, npm, RisingStack, Sauce Labs, SAP, StrongLoop (компания IBM), YLD! И Yahoo! .Примите участие здесь: https://nodejs.org.
The Node.js Foundation — это совместный проект Linux Foundation. Совместные проекты Linux Foundation — это независимо финансируемые программные проекты, которые используют возможности совместной разработки для стимулирования инноваций во всех отраслях и экосистемах.
www.linuxfoundation.org
Знакомство с фондом Node.js | Joyent
10 февраля 2015 г. — Скотт Хаммонд
Поделиться:
Сегодня утром мы вместе с несколькими видными членами Node.js — объявили о нашем намерении сформировать Node.js Foundation, независимый фонд, который будет контролировать производство и развитие проекта Node.js.
Node.js значительно вырос за последние несколько лет. То, что когда-то было инновационным инструментом для разработчиков, теперь стало фреймворком для миллионов людей и компаний по всему миру. Они полагаются на Node.js и будут использовать его еще долгие годы.
Когда я прибыл в Joyent прошлым летом, сразу стало очевидно, что потребности Node.js переросли существующую структуру проекта. В то время как мы наблюдали феноменальный рост и успех со стороны пользователей, мы хотели сделать шаг вперед и обеспечить еще большую прозрачность и инновации со стороны разработчиков.
Первым шагом было создание Консультативного совета Node.js, который был создан для предоставления коллективного вклада сообщества руководству проекта Node.js.
Что лучше для Node.js: движение вперед
Консультативный совет Node.js дал рекомендации по таким вопросам, как управление проектом, кодекс поведения, интеллектуальная собственность, тестирование совместимости API, обучение разработчиков, представление сообщества и управление веб-сайтом, которые были чрезвычайно важны для проекта.Стало ясно, что мы можем более эффективно удовлетворить потребности проекта Node.js и его разнообразной экосистемы с помощью нейтрального фонда, который привлечет дополнительные ресурсы, расширит базу участников Node.js и будет способствовать созданию здоровой экосистемы продуктов и услуг. провайдеры.
Мы приняли рекомендации Консультативного совета и приступили к их реализации в проекте Node.js. По мере того, как проект переходит в Фонд, мы добавим еще большей прозрачности и еще больше откроем модель управления, чтобы гарантировать, что ею руководит сообщество.
Мы создадим совет директоров, который займется такими бизнес-вопросами, как юридические, финансовые вопросы, сбор средств и развитие сообщества. Мы также превратим существующую основную команду Node.js в технический комитет, укомплектованный основными коммиттерами. TC будет работать автономно и принимать все технические решения по проекту.
На данный момент IBM, Microsoft, PayPal, Fidelity и SAP присоединились к нам в качестве членов-основателей, и мы продолжим добавлять других в ближайшие месяцы. Мы хотим, чтобы проект представлял разнообразные интересы и перспективы сообщества в целом, и стремимся включать в него организации всех размеров и отдельных лиц.Стремясь открыть Фонд для всех, мы предоставим масштабные уровни спонсорства, чтобы сделать участие возможным при любом бюджете.
Мы выбрали Linux Foundation, чтобы посоветовать нам наилучший способ структурирования и управления Foundation, чтобы обеспечить его эффективность для роста, развития и поддержки сообщества Node.
js через нейтральный фонд. Учитывая их послужной список с Linux и многими другими проектами, мы считаем, что их опыт будет настоящим активом для сообщества.
Joyent + Node.js
Joyent будет и дальше активно работать с Node.js. Наш бизнес работает на Node.js, как и наши клиенты. Вклад и поддержка, которые мы предлагаем в отношении Node.js, будут только расти по мере развития проекта. Мы продолжим направлять нескольких разработчиков на постоянную разработку ядра. Как крупный пользователь Node.js, мы будем предоставлять код, техническую поддержку, уроки, извлеченные из нашего собственного опыта, и другие ресурсы для развития сообщества Node.js.
Я хотел бы поблагодарить не только первых членов-основателей, но и Node.js, но также благодарим членов сообщества, которые ежедневно помогают улучшать Node.js и добились того успеха, который есть сегодня. Благодаря их руководству и поддержке мы уверены, что сегодняшний день знаменует собой многообещающее начало следующей главы в истории Node.


О том, как рассчитать нужное количество арматуры для вашего фундамента, читайте в нашей статье «Армирование ленточного фундамента». Разумная экономия в вопросе армирования будет заключаться в том, чтобы заложить именно нужное количество арматуры: меньше нельзя, больше тоже не нужно.
В таком случае застройщик рискует получить большие неприятности в будущем, когда подсыпка через 10-15 лет просядет и на полу либо появятся трещины (если пол из плитки/камня), либо пол вообще начнет проседать. Плинтуса в таком случае окажутся в воздухе. Мы советуем всегда продумывать опору пола первого этажа именно на фундамент.


Такой вариант лучше всего подойдет для дома из дерева;
Если строительство дома делается из дерева, то особенно тщательно нужно отделать каждый стык и узел;
.. |
\ __________ /
Скачивание шаблона проекта...
Готово!
Установка зависимостей ...
-
> узел-sass @ 3.13.1 установите C: \ Users \ J. Кларк \ документы \ проекты \ godaddyv2 \ godaddyv2 \ node_modules \ gulp-sass \ node_modules \ node-sass
> скрипты узлов / install.js
Загрузка двоичного кода с https://github.com/sass/node-sass/releases/download/v3.13.1/win32-x64-64_binding.node
Не удается загрузить "https://github.com/sass/node-sass/releases/download/v3.13.1 / win32-x64-64_binding.node ":
Ошибка HTTP 404: не найдено
Подсказка: если github.com недоступен в вашем регионе
попробуйте установить прокси через HTTP_PROXY, например
экспорт HTTP_PROXY = http: // example.com: 1234
или настройте прокси-сервер npm через
npm config установить прокси http://example.com:8080
>
exe C: \ Users \ J. Кларк \ документы \ проекты \ godaddyv2 \ godaddyv2 \ node_modules \ gulp-sass \ node_modules \ node-sass \ node_mo
dules \ node-gyp \ bin \ node-gyp.js перестроить --verbose --libsass_ext = --libsass_cflags = --libsass_ldflags = --libsass_library =
информация gyp это сработало, если оканчивается на ОК
gyp verb cli ['C: \\ Program Files \\ nodejs \\ node.EXE',
gyp глагол cli 'C: \ Users \ J. Кларк \ документы \ проекты \ godaddyv2 \ godaddyv2 \ node_modules \ gulp-sass \ node_modules \ node-sass \ node_modules \ node-gyp \
\ bin \\ node-gyp.js ',
gyp глагол cli 'перестроить',
gyp глагол cli '--verbose',
глагол gyp cli '--libsass_ext =',
глагол gyp cli '--libsass_cflags =',
глагол gyp cli '--libsass_ldflags =',
глагол gyp cli '--libsass_library =']
gyp с использованием node-gyp @ 3.8.0
информация gyp с использованием
js: 42: 5
gyp глагол `which` не удалось в C: \ Users \ J. Кларк \ документы \ проекты \ godaddyv2 \ godaddyv2 \ node_modules \ gulp-sass \ node_modules \ node-sass \ node_modules \ node-g
yp \ node_modules \ which \ node_modules \ isexe \ windows.js: 36: 5
gyp глагол `which` не удалось выполнить при FSReqWrap.oncomplete (fs.js: 152: 21)
глагол gyp `which` не удалось python2 {Ошибка: не найдено: python2
gyp глагол `which` не удалось получить при getNotFoundError (C: \ Users \ J. Clark \ documents \ projects \ godaddyv2 \ godaddyv2 \ node_modules \ gulp-sass \ node_modules \ node-sass \ n
ode_modules \ node-gyp \ node_modules \ which \ which.js: 13:12)
gyp глагол `which` не удалось на F (C: \ Users \ J.Кларк \ документы \ проекты \ godaddyv2 \ godaddyv2 \ node_modules \ gulp-sass \ node_modules \ node-sass \ node_modules \ nod
e-gyp \ node_modules \ which \ which.js: 68: 19)
глагол gyp `which` не удалось на E (C: \ Users \ J. Clark \ documents \ projects \ godaddyv2 \ godaddyv2 \ node_modules \ gulp-sass \ node_modules \ node-sass \ node_modules \ nod
e-gyp \ node_modules \ which \ which.
js: 80: 29)
gyp глагол `which` не удалось в C: \ Users \ J.Кларк \ документы \ проекты \ godaddyv2 \ godaddyv2 \ node_modules \ gulp-sass \ node_modules \ node-sass \ node_modules \ node-g
yp \ node_modules \ который \ which.js: 89: 16
gyp глагол `which` не удалось в C: \ Users \ J. Кларк \ документы \ проекты \ godaddyv2 \ godaddyv2 \ node_modules \ gulp-sass \ node_modules \ node-sass \ node_modules \ node-g
yp \ node_modules \ which \ node_modules \ isexe \ index.js: 42: 5
gyp глагол `which` не удалось в C: \ Users \ J.Кларк \ документы \ проекты \ godaddyv2 \ godaddyv2 \ node_modules \ gulp-sass \ node_modules \ node-sass \ node_modules \ node-g
yp \ node_modules \ which \ node_modules \ isexe \ windows.js: 36: 5
глагол gyp `which` не удалось выполнить на FSReqWrap.oncomplete (fs.js: 152: 21)
gyp глагол `which` failed stack:
gyp глагол `which` failed 'Ошибка: не найдено: python2 \ n в getNotFoundError (C: \\ Users \\ J.Кларк \ документы \ проекты \ godaddyv2 \ godaddyv2 \ node_modu
les \\ gulp-sass \\ node_modules \\ node-sass \\ node_modules \\ node-gyp \\ node_modules \\ which \\ which.
js: 13: 12) \ n в F (C: \\ Users \\ Дж. Кларк \ документы \ проекты
\\ godaddyv2 \\ godaddyv2 \\ node_modules \\ gulp-sass \\ node_modules \\ node-sass \\ node_modules \\ node-gyp \\ node_modules \\ which \\ which.js: 68: 19) \ n в E (C: \ Использовать
rs \\ J. Clark \ Documents \ projects \ godaddyv2 \ godaddyv2 \ node_modules \ gulp-sass \ node_modules \ node-sass \ node_modules \ node-gyp \ node_modules \ which \\ w
хич.js: 80: 29) \ n в C: \ Users \ J. Clark \ documents \ projects \ godaddyv2 \ godaddyv2 \ node_modules \ gulp-sass \ node_modules \ node-sass \ node_modules \ no
de-gyp \\ node_modules \\ which \\ which.js: 89: 16 \ n в C: \\ Users \\ J. Кларк \ документы \ проекты \ godaddyv2 \ godaddyv2 \ node_modules \ gulp-sass \ node_modules
\\ node-sass \\ node_modules \\ node-gyp \\ node_modules \\ which \\ node_modules \\ isexe \\ index.js: 42: 5 \ n в C: \\ Users \\ J. Кларк \ документы \ проекты \ годаддыв2 \
\ godaddyv2 \\ node_modules \\ gulp-sass \\ node_modules \\ node-sass \\ node_modules \\ node-gyp \\ node_modules \\ which \\ node_modules \\ isexe \\ windows.
js: 36: 5 \ n в точке F
SReqWrap.oncomplete (fs.js: 152: 21) ',
глагол gyp `which` отказавший код: 'ENOENT'}
gyp verb check проверка python для исполняемого файла Python "python" в PATH
gyp глагол `который` заменил python C: \ Users \ J.Кларк \ AppData \ Local \ Programs \ Python \ Python37-32 \ python.EXE
gyp ERR! ошибка настройки
gyp ERR! Ошибка стека: сбой команды: C: \ Users \ J. Clark \ AppData \ Local \ Programs \ Python \ Python37-32 \ python.EXE -c import sys; напечатайте "% s.% s.% s"% sys.versio
n_info [: 3];
gyp ERR! Файл стека "<строка>", строка 1
gyp ERR! stack import sys; напечатайте "% s.gyp ERR! stack SyntaxError: недопустимый синтаксис
gyp ERR! куча
gyp ERR! стек в ChildProcess.exithandler (child_process.js: 289: 12)
gyp ERR! стек в ChildProcess.emit (events.js: 182: 13)
gyp ERR! стек в mightClose (internal / child_process.js: 961: 16)
gyp ERR! стек в Process.ChildProcess._handle.onexit (internal / child_process.js: 250: 5)
gyp ERR! Система Windows_NT 10.0.17134
gyp ERR! команда "C: \ Program Files \ nodejs \ node.
exe "" C: \\ Пользователи \\ J. Кларк \ документы \ проекты \ godaddyv2 \ godaddyv2 \ node_modules \ gulp-sass \ node_mod
ules \\ node-sass \\ node_modules \\ node-gyp \\ bin \\ node-gyp.js "" rebuild "" --verbose "" --libsass_ext = "" --libsass_cflags = "" --libsass_ldflags = "" --libsass_lib
rary = "
gyp ERR! cwd C: \ Users \ J. Кларк \ документы \ проекты \ godaddyv2 \ godaddyv2 \ node_modules \ gulp-sass \ node_modules \ node-sass
gyp ERR! узел -v v10.9.0
gyp ERR! узел-gyp -v v3.8.0
gyp ERR! не в порядке
Сбой сборки с кодом ошибки: 1
При установке возникли проблемы.✓ Создана новая папка проекта.
✗ Узловые модули не установлены. Попробуйте запустить npm install вручную.
✓ Компоненты Bower установлены.
После того, как вы решите указанные выше проблемы, запустите Foundation Watch, находясь в папке godaddyv2.