Планировка квартир серии П-44Т. Серия дома П-44Т
Серия П-44Т
Годы строительства: с 1997 по наст. время
Материал стен: панель с облицовкой «под кирпич»
Количество секций (подъездов): 1-8
Количество этажей: 9-25, наиболее распространенные варианты — 14, 17
Высота потолков: 2.70-2.75 м.
Лифты: пассажирский и грузопассажирский, в 20-25-этажных секциях (подъездах) — 2 грузопассажирских и пассажирский
Балконы: застекленные лоджии в 1-комнатных квартирах. Застекленные лоджии и эркеры в 2- и 3-комнатных квартирах (в торцевых и угловых 2- и 3-комнатных квартирах также полуэркеры)
Количество квартир на этаже: 4
Панельные дома типовой серии П-44Т в Москве строились как в новых районах массовой застройки: Марьинский Парк, Северное и Южное Бутово, Солнцево, Митино, пос.
В Московской области новостройки серии П-44Т построены/строятся в городах Балашиха, Железнодорожный, Лобня, Красногорск, Люберцы, Московский, Котельники, Реутов, Одинцово, Химки, Щербинка, а также в пос. Медвежьи Озёра, пос. Голубое, дер. Брёхово, дер. Пыхтино.
Количество построенных домов в Москве: около 600, в Московской области — около 200. На рынке новостроек Москвы и Подмосковья эта серия одна из самых распространенных. В то же время доля социальных домов — около 50%.
Нормативный срок эксплуатации дома (по данным производителя — ДСК-1) — 100 лет
Площади 1-комнатных квартир (4 типоразмера): общая: 37-39 кв.
м., жилая: 19 кв. м., кухня: 7-8.4 кв. м.
Площади 2-комнатных квартир (4 типоразмера): общая: 51-61 кв. м., жилая: 30-34 кв. м., кухня: 8.3-13.2 кв. м.
Площади 3-комнатных квартир (6 типоразмеров): общая: 70-84 кв. м., жилая: 44-54 кв. м., кухня: 10-13 кв. м.
Все комнаты в квартирах домов серии П-44Т изолированные
Санузлы: в 1-комнатных квартирах — совмещенные, в 2- и 3-комнатных квартирах — раздельные, ванны: стандартные, длиной 170 см.
Лестницы: незадымляемые. Мусоропровод: с загрузочным клапаном на каждом этаже
Тип кухонной плиты: электрическая
Стены: наружные железобетонные трехслойные панели (бетон — утеплитель полистирол — бетон) общей толщиной 30 см (теплоизоляция которых равна кирпичной стене толщиной 90 см.) Межквартирные и межкомнатные несущие — железобетонные панели толщиной 16 и 18 см. Перегородки — гипсокартонные толщиной 8 см.
Перекрытия — крупноразмерные («на комнату») железобетонные плиты толщиной 14 см.
Несущие стены: продольные межквартирные и поперечные все (межквартирные и межкомнатные)
Тип секций: торцевые, рядные и поворотные (угловые). Подъезд, где расположена электрощитовая, имеет вход с 2-х сторон
Количество шагов в секции (подъезде): 7, ширина шага (расстояние между двумя соседними несущими стенами): 300 см (в 3-х центральных пролетах каждой секции), 360 см (в остальных)
Облицовка, штукатурка наружных стен: облицовка «под кирпич», нижние этажи — облицовка «под камень»
Варианты цветов внешних стен: темно-оранжевый, светло-рыжий, нижние этажи — серый, эркеры и полуэркеры — белый
Тип кровли: плоско-скатная или скатная черепичная производства BRAAS ДСК-1, цвета: зеленый, коричневый
Отличительные особенности: серия домов П-44Т отличается от предшественницы — серии П-44 (которая строилась в 1979-1999 гг.
) повышенной теплоизоляцией стен, вентиляционным коробом в прихожей (а не на кухне), остеклением лоджий, эркерами и полуэркерами, а также узнаваемой наружной отделкой под кирпич
Иные достоинства: повышенная звукоизоляция, отопительные приборы с регуляторами температуры, медная электропроводка, технология «закрытого стыка (шва)», мировые стандарты по капитальности и огнестойкости (1-е классы), современная система безопасности (реагирование на открытие дверей подвала, электрощитовой, чердака, шахты лифта; система оповещения о затоплении, пожаре). Быстрые темпы строительства (1 этаж за 3 дня): специалисты www.1Dom.ru не выявили ни одного случая долгостроя домов этой серии.
Недостатки: качество монтажа наружных стен в отдельных корпусах
Производитель: ДСК-1 (крупнейшее предприятие строительной индустрии России)
Проектировщик: МНИИТЭП (Московский НИИ типологии и экспериментального проектирования)
Конструктивные характеристики и внешний вид домов типовой серии П-44Т во многом схожи с домами серий П-44М, П-44ТМ, П-44К
Первый дом серии П-44Т построен в 1997 г.
на ул. Маршала Василевского (Щукино). Один из самых узнаваемых в Москве разноэтажный ступенчатый жилой комплекс со шпилями на Рубцовской набережной, по форме напоминающий замок, построен из блок-секций серии П-44Т
ᐈ 🔥 💰 Схемы и фото дома серии п 44т планировка с размерами
Автор LocDog На чтение 16 мин. Просмотров 1.3k. Опубликовано
Характеристики серии П-44т
- Тип дома — панельный
- Этажность — 6, 10, 12-17
- Высота жилых помещений — 264 см
- Квартиры — 1,2,3,4 комнатные
- Производитель — ДСК-1
- Годы строительства — с 1997 г. по настоящее время
- Города распространения — Москва, Подмосковье (Балашиха, Железнодорожный, Красногорск, Лобня, Люберцы, Химки, Московский, Одинцово, Солнечногорск), Мурманск
- Архитекторы: Ю.
Григорьев, А. Надысев, Т. Принтц, А. Цыганкова - Инженеры: Е. Никитин, А. Янко, Н. Маклакова
- Варианты планировки жилой секции в П-44т (основные)
Основные характеристики планировки
Серия П-44Т по сути является современной реализацией типового проекта серии домов П-44, в П-44Т значительно улучшены планировка и применяемые при строительстве материалы. Вариантов жилых секций у П-44Т около десяти (угловые и рядовые).Конструктивные характеристики и внешний вид домов типовой серии П-44Т во многом схожи с домами серий, П-44ТМ, П-44К. Нормативный срок эксплуатации- 100 лет.
- Серия: П-44Т
- Тип дома: панельный
- Производитель: Московский домостроительный комбинат №1 (ДСК-1)
- Годы строительства: с 1997 по настоящее время
- Количество этажей: 9-25, наиболее распространенные варианты – 14, 17
- Количество комнат в квартирах: 1, 2, 3
- Высота жилых помещений: 2,7—2,75 м
- Количество квартир на этаже: 4
- Количество секций (подъездов): 1 и более
- Тип секций (подъездов): торцевые и рядные (рядовые)
- Тип секций: От 1 до 8 (возможны комбинации подъездов разных серий – П-44Т, П-44К, П-44ТМ/25 в одном доме)
- Лифты: пассажирский 400 кг и грузопассажирский 630 кг
- Лестницы: незадымляемые
- Вентиляция: естественная вытяжная, вентблоки в санузле и в коридоре
- Мусороудаление: мусоропровод с загрузочным клапаном на каждом этаже
- Технический этаж: над верхним жилым этажом
- Лоджии: застекленные во всех квартирах, начиная со 2-го этажа
- Тип кухонной плиты: электрическая
- Ванны: стандартные, длиной 170 см
- Санузлы: в 1-комнатных квартирах совмещенные, в 2-3-комнатных – раздельные
- Наружные стены: железобетонные трехслойные панели (бетон – утеплитель – бетон) общей толщиной 30 см, облицованные «под кирпич», нижние этажи – облицовка «под камень»
- Несущие стены: практически все, что затрудняет перепланировку, возможен только снос перегородки между туалетом и ванной в 2-комнатных квартирах
- Материал стен: железобетонные
- Внутренние стены: Сборные железобетонные панели толщиной 16 см и 18 см
- Перегородки: толщиной 8 см
- Межквартирные и межкомнатные несущие: железобетонные панели толщиной 16 см
- Перекрытия: крупноразмерные (“на комнату”) железобетонные плиты толщиной 14 см
- Эркеры и полуэркеры: Эркеры и полуэркеры в 2- и 3-комнатных квартирах
Серия домов П-44Т отличается от (серии П-44) повышенной теплоизоляцией стен, вентиляционным коробом в прихожей, остекленными лоджиями, эркерами и полуэркерами, а также узнаваемой наружной отделкой под кирпич, для проживания в домах серии П-44Т бывает доступен мансардный этаж.
Достоинства: Улучшенная шумоизоляция наружных панелей и «швов», регуляторы на отопительных приборах, медная электропроводка, использование технологии закрытого стыка, соответствие международным стандартам по капитальности и пожаробезопасности, современные системы безопасности.
П 44т планировка 3 комнатная
Наружная отделка и конструктивные особенности серии
Серию многосекционных домов П-44Т легко узнать по эстетичной отделке фасадов «под кирпич», которая облагораживает внешний вид бетонной конструкции. Наружная отделка дома обычно выполняется в темно-оранжевых или светло-песочных тонах, а отделка нижних этажей, эркеров и полуэркеров в серо-белой цветовой гамме.
Неоспоримыми достоинствами многоэтажек серии П-44Т являются: высокий уровень шумоизоляции у наружных панелей, наличие у отопительных приборов индивидуальных регуляторов, современные противопожарные системы, устройства для оповещения о пожарах, затоплениях, реагирования на открытие дверей техэтажа, подвала, электрощитовой, шахты лифта).
Благодаря тому, что бетонные панели имеют максимально ровные поверхности в сравнении с панелями в других многоэтажках, значительно сокращаются затраты на внутреннюю отделку квартир.
Однако отдельные отзывы свидетельствуют о том, что в новых домах при усадке образуются трещины на стыках панелей и иногда происходит разгерметизация «швов». Поэтому при покупке квартиры необходимо обратить внимание на качество монтажа панелей.
П 44т планировка 1 комнатная
В квартирах п44к «однушка», планировка отличается от п44т тем, что она считается улучшенной. На комнату здесь приходится 18,9 м. кв., кухня с полуэркером либо треугольным эркером – 9,1 или 10,1 метра, ванную (совмещенный санузел) – 3,6 метра, прихожую – 5,6 кв. м., балкон – 3,5 кв. м. Общая площадь – 39,2-40 квадратных метров. «Обновления» здесь также производятся с учетом всех строительных ограничений.
В описываемых квартирах всегда имеются воздушные короба, сносить которые запрещается, но слегка видоизменять форму, декорировать различными способами, вполне допустимо.
Варианты перепланировок однокомнатной квартиры п44т с размерами для разного количества людей
В «однушке» п44т, размеры колеблются от 37 кв. м. до 39 кв. м., при этом жилая площадь составляет 19 метров, кухня – 7-9 «квадратов». В кухне часто организуется не только готовка, прием пищи, но и спальное место одного из членов семьи. Для «однушки» п44к существует чуть больше возможностей перепланировки – например, присоединение просторного балкона.
Любой из двух описываемых вариантов подойдет для проживания различного количества людей.
Слева квартира до перепланировки, справа после. В комнате возле окна выделена спальная зона с кроватью и комодом, гостиная сделана проходной
Важно знать, что, если кухня и гостиная так или иначе объединены, в кухонном помещении, по нормам пожарной безопасности, допустимо ставить только электрическую плиту.
Для 1 и 2 человек
Если в квартире собираются жить один-два человека, из нее пытаются сделать «студию», максимально расширив проем между кухней и комнатой.
В другом варианте организуется гардеробная зона, а вход в гостиную немного переносится – ближе к коридору или в кухню. Когда в квартире живут взрослый и ребенок, легко организовать две отдельных спальни, а на балконе сделать мини-кабинет.
Для семьи из 3 человек
Семья из трех взрослых или двух взрослых и ребенка также легко разместится в переделанном помещении. Для ребенка тогда отделяют небольшое пространство в гостиной, если он уже достаточно взрослый, имеет смысл застеклить, утеплить балкон, организовав там детское спальное или рабочее место.
Комнату тогда разделяют перегородкой на две равные или неравные комнатки.
Для семьи до 5 человек с расширением проема кухня-гостиная
Семье из четырех или пяти человек в «однушке» будет тесновато, но как временный вариант, когда выбирать не приходится, они также сравнительно удобно поместятся все. Вопрос спальных мест легко решается наличием двухъярусных, а то и трехъярусных кроватей.
Расширение проема между залом и кухней тут наиболее уместно, так как дает возможность нормального перемещения по квартире.
Если двое-трое из жильцов – дети, то им выделяется общее пространство, отдельное от взрослого помещения. Места хранения размещаются в высоких шкафах в прихожей, на кухне, ванная комната немного сужается. По возможности, для одного или двух человек спальные места обустраивают на балконе.
П 44т планировка 2 комнатная
П-44Т — одна из самых распространенных серий типовых панельных домов. Ее легко узнать по эркерам и полуэркерам на фасаде.
Типовая планировка
В зависимости от плана этажа двухкомнатная квартира может быть линейной или распашонкой.
В обоих вариантах на кухне есть эркер — угловой или полукруглый. А площадь жилых комнат примерно одинакова.
Но при торцевом расположении в «двушке»-распашонке бывает еще один угловой эркер, а также несущие полуколонны в большой жилой комнате.
С угловым эркером в жилой комнате
Если квартира расположена в торце здания, то на кухне будет полукруглый эркер, а в жилой комнате — еще один треугольный.
Архитектор Мария Закалата превратила подоконник в треугольном эркере в столешницу, чтобы любоваться видом из окна или работать с ноутбуком. А в нишу у окна как раз встал диван. Раскладывающийся механизм позволяет при необходимости оставить гостей на ночь.
Вторую комнату отвели под спальню. Лоджии в обоих случаях утеплили и присоединили. Это спорное решение: для согласования такой перепланировки потребуется разрешение разработчика серии домов П-44Т — МНИИТЭП.
Для кухни специально подобрали диван такого размера, чтобы он уместился в эркере. А в угловом гарнитуре встроили всю необходимую бытовую технику и предусмотрели систему хранения для посуды и продуктов.
Линейные двухкомнатные квартиры
Такое название получили из-за расположения окон, которые выходят на одну сторону.
Прямоугольная прихожая, от которой расходятся санузел и кухня с одной стороны, по центру маленькая комната и большая, с другой стороны. Считается, что такое расположение дает наилучшую освещенность. Но, от этого страдает возможность циркуляции воздуха.
Линейки меньше распашонок, но и стоят на рынке недвижимости дешевле и, следовательно, раскупаются лучше.
Оформление комнат в двухкомнатной квартире линейки п44т
Дизайн двухкомнатной квартиры п44т может иметь несколько вариантов, в зависимости от количества проживающих человек. Проводя эксперименты с размещением мебели или использованием элементов декора можно уютно обустроить квартиру максимально используя все предоставленное пространство.
Ниже можно посмотреть представленные в линейке домов п44т дизайн проекты 2 комнатных квартир фото вариантов оформления всех помещений.
Дизайн прихожей
Размеры прихожей позволяют разместить на ее территории несколько небольших шкафов для обуви и верхней одежды.
Не стоит загружать прихожую объемными шкафами-купе, она должна быть функциональной и уютной.
Ведь она создана для того, чтобы вместить всех вошедших и создать максимально комфортные условия для снятия обуви и верхней одежды.
Оформление гостиной
В этой комнате проводится все свободное время, и происходят все торжественные мероприятия с приемом гостей. В дизайне гостиной линейной двушки можно использовать зонирование. Размеры позволяют разделить ее на части, сделав небольшую спальню.
Такая планировка не требует какого-либо оформления с юридической точки зрения. Этот вариант подойдет многодетным семьям.
Интерьер гостиной должен быть интересным, но в то же время функциональным. Стоит использовать элементы, которые создадут комфорт не только для проведения встреч с друзьями и родственниками, но и пригодные для жизни условия.
Оформление кухни
В дизайне проекта двушки линейки п 44т кухня имеет значительную роль.
В условиях наличия всего двух комнат зачастую именно кухня используется как место встреч с друзьями. Поэтому и здесь стоит обратить внимание на максимально полезное использование всей площади. Для создания простора можно цветовой гаммой разделить кухню на зоны: рабочую и отдыха.
Оформление должно быть выполнено в таком стиле, чтобы на кухне можно было удобно готовить и комфортно принимать пищу или общаться с друзьями.
Дизайн спальни
Для семьи из двух человек в спальне в двушке п44 прекрасно будет смотреться в маленькой комнате. Его можно выполнить, соблюдая стандартный стиль: вместительная двухместная кровать, шкаф для одежды, комод для белья. Она должна быть функциональной и размещаться должно все необходимое для жизни.
Спальня одна из самых интимных частей квартиры, должна содержать все личные вещи для двоих.
Оформление детской
В случае, если семья состоит больше двух человек, то маленькую комнату стоит использовать для создания детской.
Выполнение маленькой комнаты в дизайне квартиры п44т двухкомнатной линейки как детской универсально подходит для одного или двух детей. Используя гипоаллергенные материалы и практичную детскую мебель можно создать уют для детей, который будет одновременно стильным и практичным.
В такой детской ребенку будет комфортно заниматься, учиться, играть и приглашать своих друзей.
Дизайн ванной и туалета
Оформляя санузел важно учесть предпочтения всех проживающих. Совмещая санузел увеличивается практичная площадь, что визуально объем помещения делает больше. Но, это дает дискомфорт, так как не дает возможности посетить туалет и ванную одновременно нескольким членам семьи.
В совмещенном санузле можно разместить стиральную машинку. Так же прекрасно впишутся навесные шкафчики для косметики и шкафы для грязного белья. Более гармонично будет смотреться ванная, тогда как для сохранения места в раздельном санузле стоит использовать душевую кабину.
Оформление балкона
При дизайне балкона 2 комнатной квартиры линейки п44т можно использовать различные варианты: сделать из него небольшой личный кабинет, зону для занятия спортом или оранжерею. Главное – использовать правильное распределение свободной площади и обеспечить защиту от воздействия внешних температур.
Советы и идеи по оформлению дизайна двухкомнатной квартиры линейки п44т
Главное при разработке дизайна п44т двухкомнатной линейки совместить пожелания всех членов семьи. Стоит учитывать ее расположение относительно сторон света, для регулировки освещенности внутри жилья.
При выборе стилей оформления можно использовать такие решения:
- Классический стиль, который не требует помпезности, роскошества и дорогостоящей мебели.
- Хай-тек. Минимализм подойдет для семьи из двух человек.
- Необарокко. Наличие только необходимой мебели оставит большое количество свободного места.

При помощи дизайнерских решений можно сделать очень интересный и привлекательный интерьер для жизни.
П44т планировка распашонки
Распашной тип двухкомнатных квартир
Данный тип расположен в торцевой части дома. Особенность планировки заключается в расположении прихожей и возможным наличием эркера в большой комнате. Комнаты распашонок просторнее и циркуляция воздуха намного лучше. Окна комнат находятся на одной линии, окна кухни выходят на другую сторону.
Особенности планировки
Двухкомнатная квартира-«распашонка» в доме П-44Т — или, как ее еще называют, «угловая двушка» — ориентирована таким образом, что во внутреннем углу находится прихожая. От линейной двухкомнатной квартиры «распашонка» отличается чуть более просторными комнатами.
В такой квартире практически все стены несущие, поэтому кардинальную перепланировку проводить априори невозможно. Есть смысл поупражняться с функциональным наполнением помещений, изредка — с возведением перегородок и мебелью.
Важно: В каждом из предложенных вариантов перепланировки ванную комнату и санузел можно объединить или оставить раздельными.
Решения, которые я описываю в этой статье, разработаны и воплощены для реальных заказчиков — и каждый раз с учетом их интересов. Вы же, исходя из потребностей вашей семьи, вольны выбрать собственное рациональное дизайн-решение, учитывающее необходимые вам размеры комнат.
Характерные особенности квартир-распашонок п44т
Большая и удобная квартира в панельном доме пользуется огромной популярностью, благодаря удобному расположению комнат, большому коридору около 10 м2, где с легкостью разместится гардероб и светлой кухне в 13 м2 с эркером.
Такая квартира всегда будет светлой и просторной: окна в комнатах выходят на разные стороны дома и в планировке предусмотрено два балкона, которые можно включить в общую площадь квартиры.
В маленькой квадратной комнате площадью 15 кв.
м можно обустроить детскую комнату, где удобно разместятся двое детей. Или просторную спальню, а балкон при утеплении может стать небольшим кабинетом для хозяина дома.
Большая комната имеет форму прямоугольника площадью 19 кв. м будет отличной гостиной для приема гостей и праздничных обедов в кругу семьи. Раздельный санузел в квартире часто совмещают, тогда появляется возможность установки душевой кабины.
Плюсы и минусы квартир-распашонок
В любой квартире старой постройки есть свои преимущества и недостатки, но стоит отметить, что плюсов гораздо больше, чем минусов. Посмотрев фото ремонта двушки–распашонки п44т в интернете, вы убедитесь, что преимущества можно приумножить и с легкостью справитесь с недостатками.
Основные преимущества квартиры:
- Выход окон на разные стороны дома дает больше солнечного света в помещениях. Также это удобно для семьи с детьми, мама может наблюдать за детской игрой, не выходя из дома из окна, выходящего во двор.

- Эркер на кухне. Благодаря этому элементу планировки можно создать уникальный и красивый дизайн, который выгодно подчеркнет всю квартиру.
- Два балкона. Один из них можно использовать по прямому назначению, а за счет другого расширить полезную площадь помещения.
- Удобство проветривания, вам никогда не понадобиться кондиционер даже в очень жаркие дни. Окна на разные стороны проветрят помещение за несколько минут естественным путем.
- Легкая перепланировка квартиры при необходимости. Внутренние стены в таких домах не являются несущими, поэтому без особых разрешений и усилий можно убрать несколько перегородок для создания того интерьера, какой вам необходим.
- Размер коридора позволит поместить удобную гардеробную на всю семью или поставить дополнительную бытовую технику, чтобы не заставлять кухню.
Минусы в такой квартире тоже присутствуют, но они компенсируются большинством плюсов.
Дизайн двушки-распашонки п44т подразумевает единый стиль для всего помещения. Также стоит обратить особое внимание на качество остекления окон и балконов: малейшая щель создает сквозняк, что будет небезопасно для вас и особенно для детей.
Варианты дизайна в разных стилях
Дизайн 2-комнатной квартиры-распашонки п44т – работа не из легких, но особенности планировки позволяют применить практически любое направление в отделке.
Главное, что стоит помнить, выбирайте одно направление в оформлении и придерживайтесь его во всем доме, включая санузел, тогда ваш интерьер будет выглядеть органично и красиво.
Лофт
Этот стиль выбираю творческие люди, не признающие классический дизайн и любящие простор и свободу. Стиль лофт подразумевает максимально открытое пространство в помещении, поэтому часто при оформлении убираются перегородки между большой комнатой, кухней и коридором. Оставляют нетронутыми только спальню и санузел. А общее пространство зонируют стеклянными перегородками.
Основная особенность стиля – это отделка помещения натуральными материалами с естественной немного грубоватой фактурой. Это деревянный пол и балки на потолке, наличие кирпичной кладки в интерьере. Светлые оттенки в отделке с необработанными поверхностями. При оформлении этого стиля сочетают современные предметы интерьера со старинными безделушками на разных полочках.
Минимум мебели в интерьере, но она должна быть многофункциональной. Наличие эркера наиболее выигрышно подчеркнет это направление.
Шведский
Если вы приверженец чистоты и лаконичности в интерьере своего дома, лучшего стиля не найти. Чтобы создать этот стиль в своей квартире, особых усилий не потребуется. Не надо убирать перегородки между комнатами, светлые оттенки в отделке и мебели сделают ваш дом светлым и просторным.
Преимущество в отделке помещения отдается белому цвету и мебели из натурального дерева, особенно гармонично в таком интерьере смотрится беленый дуб.
Чтобы комната не выглядела безлико, внимание акцентируют на мягкой мебели с яркими подушками и коврика под ногами в цветах Скандинавии – это кремовый, коричневый, бежевый и серый во всех оттенках.
Минимум декора в помещении, много зеркал и светильников из прозрачного стекла придадут вашему дому простор.
Современный
Особенности данного стиля – простые, четкие формы мебели и светлые тона в отделке. Минимум декора в интерьере, компенсируется яркими контрастными акцентами. Это может быть любой цвет на ваше усмотрение: черный, красный, темно зеленый или серый.
Для тех, кто не любит яркие контрасты, акцентом могут стать теплые оттенки натуральных материалов в отделке пола и мебели на кухне. Стиль подразумевает максимальную функциональность всех предметов в доме.
Минимальный набор мебели в квартире, множество глянцевых и зеркальных поверхностей создают ощущение воздушности и простора в помещении.
Викторианский
Стиль роскоши во всех ее проявлениях – это массивная добротная мебель из натурального дерева с резными ножками и разноцветной обивкой. Отделка помещения только деревом – это могут быть стеновые панели и паркет на полу из древесины. В отделке помещения должны преобладать два цвета – это бордовый и коричневый.
Обязательные атрибуты стиля – это наличие камина в гостиной, массивные полки с книгами во всю стену, картины в массивных рамах с позолотой и множество старинных вещей в интерьере.
Стиль солидности, который подчеркивается натуральными материалами в отделке и богатым текстилем в обивке мебели, шторах на окнах и яркими коврами под ногами.
Если вы сомневаетесь в своих силах, то посмотрите готовые дизайн проекты 2 комнатной квартиры п44т – распашонки в интернете, множество вариантов и направлений помогут сделать правильный выбор. Придерживаясь одного из выбранных стилей, вы создадите в своем доме очень уютную и теплую атмосферу для всех домочадцев.
Галерея дизайна схемы и фото дома серии п 44т
Серия П-44- планировка с размерами.
Несущие стены дома серии П-44.
Серия П-44.
Количество этажей: 17 этажей, технический этаж в уровне чердака и подвал под всем зданием.
П-44- высота потолков: 2,5м.
Описание несущих элементов здания:
П-44- толщина стен.
Наружные стены: Трёхслойные навесные панели с эффективным утеплителем, толщина 300 мм.
Внутренние стены: Железобетонные панели толщиной 140, 180 мм.
междуэтажные перекрытия: Ж/б панели перекрытия толщиной 140 мм, опирающиеся по контуру размером на комнату.
Перегородки: Гипсобетонные панели толщиной 80мм.
Лестницы: Сборные ж/б из маршей и площадок.
Первое строительство домов серии П-44 приходится на 1975 год. Спраектированные здания были шестнадцатиэтажными домами, состоящими из секций, включающих расположение четырех квартир на одной лестничной клетке.
К 1979-ому году развернулось серийное производство таких зданий, только уже с семнадцатью этажами. Данная серия оказалась весьма удачной, очень распространена и строится до сих пор (в некоторых модификациях).
В отличие от зданий серии П-3 данный тип домов предусматривал сразу установку наружных стен из трёхслойных навесных панелей. Ещё одним отличием от серии П-3 является то, что перегородку в трехкомнатной квартире между коридором и гостиной можно сносить- толщина у неё всего 80 миллиметров и она является не несущей.
Фасады данной серии обычно выполнялись в двух цветах — бело-синих тонах или бело-светлокоричневых.
Тип дома П-44- дополнительная информация.
1. Серия п-44- планировка с размерами.
2. Планировка однокомнатной квартиры П-44 с размерами.
3. Планировка п-44 двухкомнатная квартира — планировка с размерами.
4. Серия П-44- планировка с размерами трехкомнатной квартиры.
5.
Перепланировка однокомнатной квартиры П-44.
До перепланировки.
После перепланировки.
При данной перепланировке однокомнатной квартиры в серии дома П-44 выполнили дополнительный проем в несущей стене для прохода на кухню, а жилую комнату разделили раздвижной стеклянной перегородкой. Также снесли встроенные шкафы и сделали один большой. В рамках перепланировки также можно было бы частично расширить совмещенный санузел за счет площади коридора.
6. Дом П-44- фото.
7. Описание из каталога.
8. Дом серии П-44 — планировка.
9. Типовая планировка дома П-44 (Варианты перепланировки П-44).
10. Планировка квартир п-44 в формате dwg.
Скачать
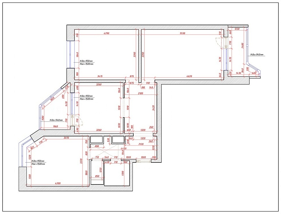
П-44т планировка с размерами 3-х комнатная квартира
Давайте сегодня посетим 3-х комнатную квартиру, панельного дома серии П-44Т от застройщика ДСК-1
Квартира получилась хорошая и просторная, но проектировщики не стали мудрить с дизайном и планировка оказалась похожая на другие аналогичные трехкомнатные квартиры панельных домов.
Комнаты все изолированные друг от друга. На кухне добавился большой эркер и в комнате угловых квартир присутствует треугольный эркер. В двух комнатах имеются балконы.
Мы с вами рассмотрим планировку трехкомнатной квартиры со следующими размерами:
Комната с балконом сапожок 17,8 кв.м. (на схеме номер 1)
Комната без балкона 14,1 кв.м. (на схеме номер 2)
Комната с балконом утюжок 11 кв.м. (на схеме номер 3)
Кухня с большим эркером 12.9 кв.м. (на схеме номер 4)
Коридор с прихожей 14,6 кв.м. (на схеме номер 7)
Жилая площадь 42,9 кв.м
Общий метраж квартиры без балконов 70.4 кв,м
схема планировки трёхкомнатной квартиры П-44Т с размерами
Открываем входную дверь и попадаем в предбанник. Впереди идёт стена с проёмом, в котором изначально сделана небольшая арка. Справа за дверью, есть небольшое пространство, куда может поместиться небольшая гардеробная или тумба для обуви.
В этом варианте мы видим пример такой тумбы под обувь.
Так же это место может занять красивое большое зеркало в полный рост.
Проходим вперёд и попадаем в самый центр прихожей. Нас встречают три двери. Слева большая двойная дверь ведет нас в комнату 11 кв.м. и балконом башмачок. И две рядом расположенные двери — это комнаты. Что правее самая большая комната 17.8 кв.м. с балконом сапожок, и что слева маленькая комната 14 кв.м. без балкона.
Несколько интересных идей в дизайне прихожей трехкомнатной квартиры. На фото видно, что в ближнюю нам комнату слева поставили двери купе.
Ещё один интересный вариант прихожей. В арку смонтировали освещение.
А здесь по правую сторону синей прихожей, в дизайне применили колонны с освещением.
Расстановка мебели в прихожей
Если в комнатах нужно больше простора и не захламлять шкафами комнаты, для этих целей подойдет прихожая.
По длинной стене установится большой шкаф.
Кто полностью не ушел в электронные книги, а собирает дома домашнюю библиотеку, интересное решение будет если в прихожей разместить полки для книг.
В углу впишутся угловые полки.
Комната с балконом утюжок
С прихожей заходим в комнату с большим дверным проёмом. Обычно эту комнату используют под гостиную или зал. Комната хоть и не очень большая, но квадратная.
А если убрать оконные рамы и демонтировать часть подоконника, можно продлить комнату и соединить вместе с балконом.
Не всегда хватает жильцам трёх комнат. Частенько на балконах организовывают рабочие кабинеты. Оказывается и они находятся в такой ситуации, когда дорог каждый квадратный метр.
Развернёмся спиной к балкону и наблюдаем две межкомнатные двери, в стандартной планировке чистового ремонта от застройщика ДСК-1
Можно немного обыграть дверной проём. Соорудить небольшую арку и поменять обычные двери на раздвижные.
Две двери съедают много места. И если сделать однодверный проём, можно в угол комнаты поставить угловой шкаф.
А иногда демонтируют полностью всю стену.
Большая комната с балконом Башмачок
Стандартная большая комната имеющая свой балкон. Размер по длинной стене 5.56 кв.м и по короткой 3.22 кв.м. Может предназначаться как для родителей, так и для детской комнаты.
Если балкон утеплен, стены можно обклеить обоями. Вывести розетки на балкон и для освещения повесить светильники.
Стенки которые мы помним ещё с Советских времён, становятся всё менее популярными. Вместо них в дизайнах и интерьерах квартиры часто появляются длинные комоды.
А вот цветы как были в моде, так и до сих пор украшают наши квартиры.
Комната без балкона
В третьей комнате, балкон отсутствует. Большое и широкое окно. Размер по одной стене 4,34 кв.м. а по стене с окном 3,22 кв.м.
Хорошее место для спальни. Плотные тёмные шторы, помогут отгородиться от утреннего солнышка и в выходной день выспаться на мягкой кровати.
Над кроватью оригинально смотрятся большие картины на стене.
Шкаф будет не лишним предметом в комнате.
Ванна и туалет в 3-х комнатной квартире
Выходим из комнаты и отправляемся на кухню. По пути в коридоре нам попадается на глаза двери в ванну и туалет, а справа коридора пустое, но очень удобное пространство для шкафа.
Пример такого шкафа в коридоре. Но не будем на этом останавливаться подробнее, а переходим в туалет.
Туалет в квартире всего один. Стандартного размера.
Ванна в ванной комнате стоит поперёк. Стиральная машинка свободно помещается в ванной.
Кухня в 3-х комнатной квартире
Дизайн и планировка кухни, ничем не отличается от двухкомнатной квартиры распашонки. Размеры одинаковые и имеется такой же большой эркер.
Пример такой кухни с мебелью.
Смотреть фото квартир в панельном доме П-44Т
Реальные ремонты и дизайны в квартирах
люди интересуются
Впускной механизм бачка с нижней подводкой, странное поведение
ответов 1
Какие размеры окон на балконе однушки п-44т
ответов 1
Стеклянный стол на кухне фото в интерьере
Шторы и тюль на кухне фото в интерьере
Двушка распашонка П44ТОбзор двухкомнатной квартиры распашонки 60 — 64 кв.
метра Панельного дома П-44Т
П-44т планировка с размерами 3-х комнатная квартираОбзор планировки трёхкомнатной квартиры панельного дома серии П-44Т
Однокомнатная квартира в панельном доме П-44Т
Самые востребованное жильё на рынке недвижимости, это однокомнатные квартиры. Но даже на такую квартиру в Москве и ближайшем Подмосковье копить нужно очень долго. Для большинства молодых семей, однокомнатная квартира это первое жильё. И от выбора удачной планировки квартиры, будет зависеть ваше комфортное проживание. Однушки в панельных домах серии П44т имеют один вариант планировки.
Прихожая — для однокомнатной я бы сказал в полне приличная прихожая. В которой можно поиграться с расстановкой мебели. Размер прихожей составляет 7.8 метра Коридор широкий.
При входе в квартиру, в прихожей с двух сторон имеются зоны.
Которые можно эффективно использовать по назначению. Как видно из фото, в малой зоне отлично впишется вполне просторный шкаф купэ с размерами длина 1.40 см и глубиной возьмём 50см.
Или разместить половину шкафа, а на другой половинке повесить вешалки.
Неплохо получится, если на этом месте сделать гардеробную
По другой стороне входной двери в прихожей, можно установить угловой шкаф
Кому темные шкафы не нравятся, вот так будет смотреться светлый шкаф.
А если нужно больше пространства на кухне, рядом с гардеробной можно разместить холодильник
Очень много людей, живут в однокомнатной квартире семьями, двое родителей, один или два ребёнка. По этому нужно постараться все шкафы вынести в прихожую. Ведь комната у нас всего одна, и каждому нужно дать свой угол.
Коридор — двигаемся дальше, и после прихожей нас встречает коридор, который очень сильно напоминает планировку из двухкомнатной квартиры распашонки.
Посмотрите на левый угол. Точь в точь, и вытяжка расположена на том же месте только в углу меньше места по комнатной стене.
Можно поставить маленький комодик в угол.
Для более рационального использования места, ставим в угол коридора шкафчик.
А иногда получается поставить и холодильник в угол.
В коридоре нас встречает совместная ванная комната с туалетом.
Санузел – в однокомнатной квартире П44Т совмещенный с ванной комнатой. И все вместе составляет 3.7 кв метра
С левой стороны установлен унитаз и стиральная машинка.
По правую сторону санузла, разместились ванная и умывальник с зеркалом.
Кто не любит нежиться в ванной, заменяем на душевую кабинку. Над стиральной машинкой можно повесить навесной шкафчик.
Комната – в однокомнатной квартире панельного дома П44Т имеет размер 19.8 кв метра. Дверной проем в комнату 90 см. И выход на небольшой балкон в простонародье получивший название лодочка.
Проектировщики дома молодцы, не поставили дверь в комнату с угла, а разделили комнату на две зоны. На фото ниже видно. Если войти в комнату у нас будет две зоны. Небольшая зона слева и основная часть справа. Благодаря такой удачной планировки, можно создать интересные решения в интерьере.
Балкон маленький, но все же хватает места сделать на нём небольшой, но довольно вместительный шкафчик.
Кухня в однокомнатной квартире П44Т с натяжкой справляется для небольшой молодой семьи и маленьким ребёнком. Размер кухни 7.34 кв.м. Что бы сэкономить на кухне больше места, можно холодильник разместить в прихожей. Благо прихожая с этим справится.
В заключении делаем вывод: квартира отлично подойдет как для оного человека, так и для небольшой молодой семьи с маленьким ребёнком. Но когда ребенок будет подрастать, лучше конечно рассмотреть варианты о покупке двухкомнатной квартиры линейки
Смотреть фото дизайнов и интерьеров в панельном доме П-44Т
Реальные фото красивых ремонтов и дизайнов
люди интересуются
Впускной механизм бачка с нижней подводкой, странное поведение
ответов 1
Какие размеры окон на балконе однушки п-44т
ответов 1
Стеклянный стол на кухне фото в интерьере
Шторы и тюль на кухне фото в интерьере
Двушка распашонка П44ТОбзор двухкомнатной квартиры распашонки 60 — 64 кв.
метра Панельного дома П-44Т
П-44т планировка с размерами 3-х комнатная квартираОбзор планировки трёхкомнатной квартиры панельного дома серии П-44Т
п44т двушка распашонка
Самая востребованная квартира панельного дома серии П44Т которую активно покупают молодые семьи, принадлежит большой двушке распашонке А полюбить её есть за что. Метраж составляет 62 — 64кв.м Окна выходят на разные стороны, два больших балкона, кухня с большим и просторным эркером. Ну как не влюбиться в такую квартиру. Мечта каждой семьи. Давайте ознакомимся с этой квартирой поподробнее. И начинаем наш обзор с прихожей.
Прихожая – размер прихожей 9,6 кв.м поделённый на две зоны холл и коридора. Как видно из фото ниже, глубокие шкафы в холле поставить не получится. Иначе они будут закрывать дверной проём. Расстояние с лева от стены до входной двери составляет в районе 36 см.
А по правую стенку 26 см. Еще слева на стене «догадались» щитовой шкаф повесить. Напрашивается разместить в этой части прихожей узкий ящик для обуви, банкетку, зеркало и вешалку для одежды.
Пример такого ящика для обуви от ИКЕА
А здесь разместились банкетка и вешалка
Но можно конечно и здесь встроить шкаф купе.
или установить целый гардеробный комплекс.
Встаём затылком к входной двери, и глазами упираемся в две межкомнатные двери. В комнаты пока заходить не будем, а прогуляемся по коридору ведущего на кухню и ванну с туалетом.
А вот и коридор. С одной стороны коридора двери в ванну и туалет, а с другой имеется очень хороший уголок. Куда можно поставить большой встроенный шкаф.
Шкаф в углу коридора с раздвижными дверями.
Кухня
вот уж и правда, что хорошо получилось, так это кухня. Общий метраж кухни составил 12.9 кв.м. Форма помещения квадратное, плюс на кухне есть большой и просторный эркер.
Воля для фантазии дизайна и интерьера будет достаточно. Круглый стол в середине кухни встанет на свою коронную позицию, а длинные стелящиеся по полу шторы, создадут неповторимую атмосферу в интерьере кухни.
Диван теряется на кухне, куда бы вы его не поставили.
Некоторые жильцы задаются вопросом, для чего нужно небольшое углубление в стене на кухне за холодильником. Оказывается всё просто. Это место для технологического проёма. Если вы решите на кухне сделать перепланировку и вход на кухню со стороны комнаты, вы можете сломать этот проём.
Вот пример такой перепланировки, как сделали вход на кухню с маленькой комнаты.
Покидаем кухню и следующим помещением в которое мы зайдём — это санузел.
Ванна и туалет
расположен не совсем подходяще, прямо за кухонной стеной. Особенно если у вас вечеринка и на кухне собралось много друзей, не лучшее решение иметь такое по близости. Хорошо если на кухне установлена дверь.
Ванна комната имеет размер площади почти 4 кв.м.
Многие стараются соединить ванну с туалетом, а вместо ванны устанавливают душевые кабинки.
Пусть туалет с ванной будут совместные, зато полезная площадь увеличивается.
Маленькая комната
размер помещения в маленькой комнате, 14,9 кв.м. что очень даже хорошо. Комната получилась квадратная. Имеется выход на большой просторный балкон — среди жильцов прозванный утюг, так как очень похож на форму утюга. Многие жильцы, во время ремонта стараются объединить балкон утюжок с комнатой, при этом утеплив его. Это разумно и выигрышно по площади. Зачем раскидываться лишними метрами и использовать балкон только для хранения ненужных вещей.
Вот так выглядит балкон утюжок, от застройщика ДСК-1
Из комнаты получается просторная спальня, где будет стоять большая роскошная кровать.
Огромная гардеробная.
или детская комната как для одного, так и для двоих подростков.
Двухъярусная кровать чердак, сэкономит ещё больше места в детской комнате.
А на балконе организовываем рабочую зону.
Большая комната – размер площади составляет 19 кв.м. Обычная стандартная комната прямоугольного вида, как и во многих других домах. По длине стены получается 5 метров 55см и ширине 3 метра 43 см. Входная дверь в большую комнату расположена в углу, что не дает возможности во всю правую стену вытянуть шкаф, в отличии от двушки линейки. Самый главный косяк комнаты — со стороны стенки наличник просто не влез. И смотрите на фото какой получается некрасивый вид на дверь. Что бы такого не произошло и у вас, во время ремонта нужно удалить часть бетонной стены, увеличив дверной проём. И тогда места для наличника хватит. Если вы будете нанимать бригаду для ремонта, обратите на это пристальное внимание.
Так же в комнате имеется выход на балкон – получивший название «Сапожок» из-за своей формы который напоминает вид сапога.
Как всегда, в конце хочется подвести итог квартиры большой двушки распашонки панельного дома П-44Т Квартира получилась очень интересная и по праву пользующаяся спросом среди покупателей. Семье из двух детей и родителей места хватит. Благодаря большой кухне, все ваши гости свободно могут на ней поместится и не нужно будет переносить стол в комнату для вечеринки. Площадь балконов при перепланировке можно использовать для продолжения комнат.
люди интересуются
Впускной механизм бачка с нижней подводкой, странное поведение
ответов 1
Какие размеры окон на балконе однушки п-44т
ответов 1
Стеклянный стол на кухне фото в интерьере
Шторы и тюль на кухне фото в интерьере
Двушка распашонка П44ТОбзор двухкомнатной квартиры распашонки 60 — 64 кв.
метра Панельного дома П-44Т
П-44т планировка с размерами 3-х комнатная квартираОбзор планировки трёхкомнатной квартиры панельного дома серии П-44Т
Дом П44Т: планировка с габаритами
В современном городском хозяйстве наиболее распространенной является компоновка P44T, имеющая ряд безусловных преимуществ. В семидесятые годы началось строительство новых домов серии П44 по типовым проектам. Фактически, это был первый шаг к дальнейшему развитию и внедрению более современной технологии строительства и планирования жилого пространства.
Особенности компоновки P44T
P44T — компоновка с размерами, соответствующими требованиям настоящего времени, предлагает около десяти решений.Разработаны варианты жилых секций для обычных и угловых квартир. Данная планировочная модель применяется для жилых многоэтажных домов высотой от 9 до 25 этажей.
Для комфортного подъема жильцов и мебели на нужный этаж предусмотрено как минимум два лифта: пассажирский и грузовой.
Современные планировочные идеи
Основная идея планировки P44T — максимальное использование пространства. В этом контексте можно привести пример удачного инженерного решения, позволившего увеличить площадь кухни.Такие важные для каждой хозяйки квадратные метры кухни высвободили, разместив в коридоре вентиляционный канал. P44T — планировка с размерами, которые предполагают высоту 2,7 м, что обеспечивает комфорт и хороший доступ дневного света в квартиры. Современные планировочные решения позволили использовать чердачные помещения. На мансардных этажах планировка квартиры П44Т с размерами шага поперечных стен, увеличенных до 4,2 м, дает возможность безупречного благоустройства помещения.Часто их совмещают с обычным этажом, в результате получается двухэтажная квартира.
Преимущества П44Т
Планировка дома П44Т с размером внутреннего перекрытия 0,14 м и 0,18 м надежна и имеет длительный срок эксплуатации.
Прочность и устойчивость наружных стен перед внешними воздействиями обеспечивает отделка керамической плиткой 0,30 м, имитирующей кирпич, которая надежно крепится к фасаду. Использование качественных стеклопакетов гарантирует хорошую теплоизоляцию, защиту от шума и создает уют.Оснащение различными современными системами управления дает гарантию безопасности в случае пожара и при угрозе затопления. Также в многоэтажных домах этого типа устанавливаются датчики открывания дверей технических помещений и электросчетчики. П44Т — планировка с размерами, соответствующими нормативным нормам данных проектов, предполагает прокладку проводов электричества в панелях. Это повышает безопасность эксплуатации и защиту самих проводов при любых ремонтных или строительных работах.
Очень важными преимуществами дома планировки П44Т являются короткие сроки строительства и долгий срок эксплуатации. Срок службы специалистов — более ста лет.
Планировка П44Т с размерами стен намного больше, чем в зданиях, построенных в предыдущие годы, обеспечивает дополнительную надежность конструкции, лучшую звукоизоляцию квартир и хорошую теплоизоляцию помещений.
В конструкции используется качественный тяжелый бетон, который отвечает за повышенную износостойкость.
Недостатки P44T
Наряду с рядом преимуществ можно назвать некоторые недостатки, встречающиеся в домах такого типа. Одна из них — неровности стен и пола. Устранить такой недостаток несложно, выполнив центровку и обеспечив дополнительную звукоизоляцию.
Технологические отличия планировки P44T 25
Компоновка P44T 25 с размерами, описанными ниже, представляет собой современный улучшенный вариант планировки, применяемый для жилых домов высотой 25 этажей с увеличением площади Квартиры.В домах такого типа ширина ступени стены больше в сечении, а трехкомнатные квартиры оборудованы дополнительным санузлом. Технологические отличия P44T 25 заключаются в увеличенной этажности с увеличенным до трех лифтов с грузоподъемностью двух из них по 630 кг и одного — 400 кг. Площадь кухни увеличена до 9 квадратных метров. м в однокомнатной; до 15,9 кв. м в двухкомнатной линейной; до 13,8 кв.
м — в трехкомнатных и больших двухкомнатных квартирах.Общая площадь 1- / 2- / 3-комнатных квартир составляет 37,4-38,8 / 51,7-63,4 / 77-84,6 кв. М соответственно.
Eckers в домах P44T
P44T — планировка с указанными выше размерами чаще предполагает использование эркеров, что делает квартиры не только эстетически более привлекательными, но и увеличивает площадь помещения. Часть оконного пространства выносится на внешний фасад в виде трапециевидного или другого выступа, увеличивая таким образом объем помещения.Чаще всего этот метод применяется на кухнях. Благодаря эркерам комната получает дополнительное освещение, увеличивается пространство, а фасад дома выглядит более привлекательно. Выступы могут быть разной формы: прямоугольной, треугольной, многоугольной или круглой. Можно использовать и оформить эркер как отдельную зону, тогда он отделен от основного помещения барной стойкой или визуальной перегородкой, например ширмой. Большой популярностью пользуется и укороченный вариант — хаф-эркер.
Дизайнерские решения для кухонь или комнат с эркером могут быть намного интереснее обычного.
П44Т — планировка с размерами, идеально подходящими для комфортной жизни, на сегодняшний день является наиболее распространенной в многоэтажных жилых домах. Архитекторы и дизайнеры, которые работали над решением задач максимального удобства квартир, не только реализовали их в проекте, но и сделали планировку интересной и оригинальной.
Эргономичные раскладки клавиатуры
Автор Xah Lee.Дата: . Последнее обновление: .
Сегодня существует множество раскладок клавиатуры. Вот и ваша стандартная QWERTY,
и есть более эффективный Дворжак. Достаточно хорошо, правда? Нет. Очевидно,
много людей делают много макетов. Некоторые специализируются на конкретном
язык (например, немецкий, испанский), некоторые стремятся облегчить переход
из QWERTY некоторые предназначены для программистов. На этой странице представлен их список.
Тепловая карта раскладки клавиатуры
1234567890anihdyujgcvpmlsrxo; kf., bt / weq \ [] ‘- = z`QWERTY Дворжак Колемак Colemak DH Рабочий Актив Норман Capewell QFMLWY Минимак
Чем больше круг, тем чаще используется.
QWERTY
Старая добрая QWERTY, знакомая каждому. Раскладка QWERTY пришла из пишущих машинок примерно в 1870-х годах. Видеть Недостатки дизайна клавиатуры.
1234567890anihdyujgcvpmlsrxo; kf., Bt / weq \ [] ‘- = z`Qwerty Layout Тепловая карта макета QWERTYДворжак
Макет Дворжака, первый макет
рассчитан на эффективность в 1936 году.@ _- ⏎⇥ «‘Макет Дворжака программиста
Программатор Dvorak раскладка клавиатуры
[см. Дворак против Дворака программиста]
Колемак
Макет Колемак
(домашняя страница https://colemak.com/)
появился в 2005 году по проекту Шая Колемана.
Это
тот, который популяризировал увлечение дизайном раскладки клавиатуры, с его веб-хостингом
дискуссионный форум.
Colemak разработан для легкого перехода с QWERTY.
17 клавиш отличаются от QWERTY.
Колемак
продается агрессивно. Макет Colemak теперь доступен в Linux, а также в Mac
OS X 10.7 (выпущена 20 июля 2011 г.).
До Colemak люди, которым нужна альтернатива QWERTY, без вопросов просто указывали на Дворжака. Но с Colemak он показывает, что компоновка, столь же эффективная, как Dvorak, все еще возможна. Подъем к славе Colemak заключается в том, что он легко переключается с QWERTY и сохраняет горячие клавиши QWERTY для отмены копирования и вставки, и утверждает, что он более эффективен, чем Dvorak. [см. Дворжак против Колемака]
1234567890akuhsjlndcv; mirpxyoet., Bg / wfq \ [] ‘- = z`⌫Colemak layout Тепловая карта макета ColemakКолемак DH
Colemak DH (https: // colemakmods.github.io/mod-dh/) появился в 2014 году. Это улучшение Colemak, решающее проблему правильного указательный палец руки перемещается в центр, чтобы нажать H.
1234567890amuksjlngcd; hirpxyoet.
, Vb / wfq \ [] ‘- = z`Colemak DH Layout
Компоновка Colemak DHРабочий
Макет рабочего [https://workmanlayout.org/] является улучшением Colemak. Появился в 2010 году. Создал OJ Bucao. Ему не нравился Дворжак, и жалобы на то, что их слишком много указательный палец перемещается в центр домашнего ряда в Colemak.См .: Раскладка клавиатуры Workman .
1234567890akuyhjfngmc; loswxpiet., Vb / drq \ [] ‘- = z`Workman Layout Тепловая карта макета WorkmanQFMLWY
Carpalx — это сайт, изучающий эффективность раскладки клавиатуры. По его алгоритм, он предлагает макет Carpalx QFMLWY (http://mkweb.bcgsc.ca/carpalx/?full_optimization) , предполагается быть наиболее эффективным в зависимости от того, как он подсчитывает очки. Смотрите также Пороки запястья: Какая раскладка клавиатуры самая эффективная?
1234567890dpoityuargcjkhslvb; en., xw / fmq \ [] ‘- = z`QFMLWY Layout Тепловая карта макета QFMLWY Carpalx.Актив
Asset разработан для легкого перехода с QWERTY.
Разработан Дэвидом Пипграссом в 2006 году. Домашняя страница на
http://millikeys.sourceforge.net/asset/
Нормандская планировка
Нормандский макет очень новый, опубликован в 2013 году. Нормандский макет создан Дэвидом Норманом. У него хорошо продуманная домашняя страница по адресу http: // normanlayout.информация / о
Нормандский макет очень похож на Asset Layout. Нормандский макет опубликован в 2013 году и является результатом изучения всех существующие макеты. Его главное утверждение состоит в том, что он «сохраняет 22/26 букв в обычном режиме их QWERTY-пальца» и утверждает, что он столь же эффективен, как Dvorak, Colemak, Workman и т. Д.
Кроме того, нормандская раскладка, как и многие другие, имеет критическое заблуждение, полагая, что клавиши { X C V } оптимальны для вырезания, копирования и вставки.
Фактически, эти ярлыки помогут вам получить травму от повторяющегося напряжения.
[см. Почему клавиши быстрого доступа для отмены не работают?]
Capewell
Макет Кейпвелла разработан с использованием эволюционного алгоритма для разработки наилучшего возможного макета. Кейпвелл разработан Майклом Кейпвеллом. Год выпуска ~ 2005 г. Домашняя страница в http://www.michaelcapewell.com/projects/keyboard/
1234567890aklbrjptgcvqwiedxuons, h; f’ym.\ /] — [= z`Capewell Layout План КейпвеллаМинимак Макет
Минимак макет
(http://www.minimak.org/)
создан Тедом Лилли примерно в 2012 году.
Minimak разработан так, чтобы быстрее всего освоить QWERTY-клавиатуру. Он меняет только 4 клавиши, так что 2 из наиболее часто используемых букв в английском языке (e → 13%, t → 9%) теперь находятся в домашней строке и набираются сильными средними пальцами.
У Minimak есть другие версии, то меняют 8 ключей, затем меняют 12 ключей. Идея состоит в том, что можно постепенно применять более эффективный макет.
квпр
qwpr — еще один похожий на {Colemak, Workman}, но он меняет еще меньше ключей и позволяет вводить многие символы европейского языка. и символы Юникода.
макет qwpr. 11 клавиш отличаются от QWERTY. (красный для клавиш, которые меняют пальцы и фиолетовый для клавиш, которые двигаются, но говорят на тех же пальцах)qwpr разработан Джеймсон Куинн.Он появился в 2013 году. Домашняя страница в http://sourceforge.net/p/qwpr/wiki/Home/
Аренсито Планировка
Раскладка клавиатуры Аренсито, Хокон Халлингстад, 2001 год. http://www.pvv.org/~hakonhal/main.cgi/keyboard
Макет АренситоОсновные моменты по мнению автора:
- 8 наиболее часто используемых символов в домашнем ряду.

- Минимизирует повторение одного и того же пальца.
- Оптимизация диаграмм (обычная двухбуквенная последовательность) и триграфов.
- Минимизирует использование мизинцев.
Схема Maltron
Раскладка Maltron специально разработана для клавиатуры Maltron, дизайн скопирован с более известной контурной клавиатуры Kinesis. .
Раскладка клавиатуры Maltron СШАОтличительной особенностью компоновки Maltron является то, что клавиша e расположена на большом пальце. Для использования раскладки Maltron вам понадобится клавиатура с большим пальцем.
Кроме того, раскладка Maltron более эффективна, чем Dvorak или любая другая, просто потому, что она помещает наиболее часто используемую клавишу e на большой палец.
[см. Раскладку клавиатуры Maltron и Dvorak]
[см. Клавиатура Maltron]
Ошибка сохранения Z X C V
Многие макеты стараются держать много клавиш QWERTY в одном и том же положении, поэтому предположительно
легче выучить это, если вы уже нажимаете QWERTY.
Кроме того, они сохраняют
{Z, X, C, V} находятся в том же положении, что и QWERTY, так что {undo, cut,
клавиши copy, paste} не меняются, что на самом деле вызывает повторяющееся напряжение
Травма, повреждение. Видеть:
Почему горячие клавиши отмены вырезания плохи ?.
Разное Другие макеты
Есть также раскладка Дворжака для одиночной левой руки и одна для одиночной правой руки.Также существуют различные эргономичные макеты (вдохновленные макетом Дворжака) для нескольких других европейских языков. Например, турецкий F, испанский, итальянский, греческий, шведский, норвежский, финский и другие. За исключением Turkish-F, большинство из них, похоже, было разработано одним программистом. Для некоторых языков существуют конкурирующие макеты.
Какая раскладка клавиатуры самая эффективная?
Вопрос, который мы все хотим знать:
Какая раскладка клавиатуры самая эффективная?
Стандарт эргономичной компоновки для всех языков
Другая распространенная проблема — неанглийские языки.
Например, немецкий, испанский, французский и даже китайский и японский языки могут
выгода, потому что многие из их методов ввода используют английский алфавит.
[см. Частоту букв пиньинь 拼音 字母 頻率]
В этих языках обычно есть несколько дополнительных символов, таких как é что нужно набрать. Для них существует множество стандартизированных макетов (например, QWERTZ, AZERTY), но часто они по-прежнему требуют, чтобы вы вводили специальные символы с помощью комбинации нажатия клавиш с использованием AltGraph или Составить key, и эти раскладки обычно не учитывают эргономику буквенной частоты.
Благодарность
Благодарю следующих людей, которые оставили полезные комментарии.
Раскладки клавиатуры
Дворжак
Международный
Эффективность макета
Если у вас есть вопросы, положите 5 долларов на patreon и напишите мне.
CSS — Свойство позиции
Позиция Свойство определяет тип
метод позиционирования, используемый для элемента (статический, относительный, фиксированный, абсолютный или
липкий).
Позиция Свойство
Свойство position определяет тип метода позиционирования, используемого для элемента.
Имеется пять различных значений позиции:
-
статический -
родственник -
фиксированный -
абсолютное -
липкий
Элементы затем располагаются сверху, снизу, слева и справа.
свойства.Однако эти свойства не будут работать, если позиция свойство устанавливается первым. Также они работают по-разному в зависимости от позиции
значение.
положение: статическое;
HTML-элементов по умолчанию позиционируются статично.
На статически позиционированные элементы не влияют свойства top, bottom, left и right.
Элемент с положением : статический; не позиционируется каким-либо особым образом; это
всегда позиционируется в соответствии с нормальным потоком страницы:
Этот элемент
Вот используемый CSS:
Пример
div.статическое {
положение: статическое;
граница: сплошная 3 пикселя # 73AD21;
}
позиция: относительная;
Элемент с положением : относительный; расположен относительно своего нормального положения.
Установка свойств верхнего, правого, нижнего и левого положения относительно позиционированного элемента вызовет его необходимо отрегулировать от нормального положения. Другой контент не будет изменен таким образом, чтобы он соответствовал разрывам, оставленным элемент.
Этот элемент
Вот используемый CSS:
Пример
div.относительное {
положение: относительное;
слева: 30 пикселей;
граница: сплошная 3 пикселя # 73AD21;
}
позиция: фиксированная;
Элемент с положением : фиксированный; расположен относительно области просмотра, что означает, что он всегда
остается на том же месте, даже если страница прокручивается.
Вершина,
Свойства right, bottom и left используются для позиционирования элемента.
Фиксированный элемент не оставляет зазора на странице, где он обычно располагался бы.
Обратите внимание на фиксированный элемент в правом нижнем углу страницы. Вот используемый CSS:
Пример
div.fixed {
позиция: фиксированная;
внизу: 0;
справа: 0;
ширина:
300 пикселей;
граница: сплошная 3 пикселя # 73AD21;
}
Этот элемент
: fixed; позиция: абсолютная;
Элемент с положением : абсолютное; позиционируется относительно ближайшего предка
(вместо позиционирования относительно области просмотра, как фиксированный).
Однако; если элемент с абсолютным позиционированием не имеет позиционированных предков, он использует тело документа и перемещается вместе с прокруткой страницы.
Примечание. «Позиционированный» элемент — это элемент, положение которого может быть любым, кроме статический .
Вот простой пример:
Этот элемент имеет position: relative;Этот элемент
Вот используемый CSS:
Пример
div.относительное {положение: относительное;
ширина: 400 пикселей;
высота: 200 пикселей;
граница: сплошная 3 пикселя # 73AD21;
}
дел. Абсолютное {положение
: абсолютное;
верх: 80 пикселей;
справа: 0;
ширина: 200 пикселей;
высота: 100 пикселей;
граница: сплошная 3 пикселя # 73AD21;
}
позиция: липкая;
Элемент с положением : липкий; позиционируется в зависимости от положения прокрутки пользователя.
Липкий элемент переключается между относительным и фиксированным , в зависимости от положения прокрутки.Он позиционируется относительно, пока не будет достигнута заданная позиция смещения во вьюпорте — затем он «застревает» на месте (например, position: fixed).
Примечание. Internet Explorer не поддерживает фиксированное позиционирование. Safari требует -webkit-
префикс (см. пример ниже). Вы также должны указать хотя бы один из верхний , правый , нижний или левый для
липкое позиционирование для работы.
В этом примере липкий элемент прикрепляется к верхней части страницы ( вверху: 0 ), когда вы достигаете его положения прокрутки.
Пример
div.sticky {
позиция: -webkit-sticky; / * Safari * / позиция
:
липкий;
верх: 0;
цвет фона: зеленый;
граница: 2px solid # 4CAF50;
}
Элементы перекрытия
Когда элементы расположены, они могут перекрывать другие элементы.
Свойство z-index определяет порядок стека элемента (какой элемент должен быть помещен перед или позади других).
Элемент может иметь положительный или отрицательный порядок стека:
Так как изображение имеет z-index -1, оно будет помещено за текстом.
Пример
img
{
позиция: абсолютная;
слева: 0px;
верх: 0px;
z-индекс: -1;
}
Элемент с большим порядком стека всегда находится перед элементом с более низким порядком стека.
Примечание: Если два позиционированных элемента перекрываются без z-index указано, элемент, расположенный последним в HTML-коде, будет показан сверху.
Размещение текста на изображении
Как разместить текст поверх изображения:
Другие примеры
Задайте форму элемента
В этом примере показано, как задать форму элемента. Элемент обрезается по этой форме и отображается.
Проверьте себя упражнениями!
Все свойства позиционирования CSS
| Имущество | Описание |
|---|---|
| низ | Устанавливает край нижнего поля для позиционированного блока |
| зажим | Зажимает абсолютно позиционированный элемент |
| слева | Устанавливает левый край поля для позиционированного блока |
| позиция | Задает тип позиционирования элемента |
| правый | Устанавливает правый край поля для позиционированного блока |
| верх | Задает край верхнего поля для позиционированного блока |
| z-индекс | Устанавливает порядок стека элемента |
Полное руководство по раскладке клавиатуры и форм-факторам
Для многих новичков в сообществе механических клавиатур форм-факторы и раскладки клавиатуры вызывают путаницу, и это значительно затрудняет покупку правильной клавиатуры.
В этом посте я расскажу о различиях между различными форм-факторами и компоновками.
Разница между форм-факторами и компоновками
Давайте начнем с того, что заложим основу для терминов, чтобы вы знали, что я имею в виду, когда говорю об этих словах. Эта статья в основном относится, в частности, к механическим клавиатурам.
Форм-фактор клавиатуры — это физическая форма и размер клавиатуры , а также количество клавиш. Я рассмотрю следующие форм-факторы:
- Полноразмерный / Полноразмерный
- Tenkeyless / TKL / 80%
- 75%
- 60%
Существуют и другие, более узкие форм-факторы, но они выходят за рамки данной статьи.
Раскладка клавиатуры — это форма и размер клавиш в пределах определенного форм-фактора. Я рассмотрю самые популярные макеты:
- ANSI / Американский стандарт
- ISO / Европейский стандарт
- JIS / Японский стандарт
Макеты влияют на внешний вид размеров и размещения ключей, а также на общее количество ключей.
Если вы не знакомы ни с одним из этих терминов, не волнуйтесь, я рассмотрю все до единого позже, так что продолжайте читать!
Форм-факторы
Полноразмерный / Полноразмерный
Самый узнаваемый форм-фактор механической клавиатуры — полноразмерная .Скорее всего, когда вас попросят изобразить клавиатуру, вы подумаете именно об этом форм-факторе. В полноразмерном форм-факторе всего около 104 клавиш, в зависимости от раскладки.
Основная идея этого форм-фактора заключается в том, что он ничего не упускает, что делает его идеальным кандидатом для тех, кто еще не знает своих предпочтений. Вы получаете специальный доступ ко всему, что может предложить клавиатура, например к клавишам со стрелками, функциональной строке и цифровой клавиатуре.
Этот форм-фактор — отличный выбор, если вам абсолютно необходима цифровая клавиатура (также известная как tenkeypad или цифровая клавиатура), и вы не хотите использовать отдельную цифровую клавиатуру для ночных банковских феерий или работы с Excel.
TKL / Tenkeyless / 80%
Tenkeyless — это первая ступенька вниз по лестнице форм-фактора, позволяющая освободить место на столе с помощью старой цифровой клавиатуры. Форм-фактор TKL имеет всего около 88 клавиш, в зависимости от компоновки.
Очень популярный в игровом сообществе ПК, форм-фактор без ключа обычно является оптимальным компромиссом между формой и функциями. Особенно полезно, если вам нужно много места для использования мыши или вам приходится иметь дело с меньшим столом.Если вы играете в соревновательный шутер от первого лица с низкой чувствительностью мыши, вы поймете, к чему я клоню.
Другим преимуществом является то, что вы можете более эргономично разместить клавиатуру перед собой, вместо того, чтобы наклонять ее влево и печатать под углом.
Wooting One — это клавиатура без клавиш, которая идеально подходит для игр, с мультимедийными клавишами, находящимися под рукой, что не всегда так.
75%
Модель с форм-фактором 75% немного меньше и теснее, чем без ключа, но имеет более или менее ту же функциональность.
Очень непопулярный выбор на рынке, но очень практичный. Форм-фактор 75% сохраняет большую часть функциональности TKL, но ключи размещаются рядом друг с другом, не тратя лишнего места. Если вы когда-либо использовали клавиатуру ноутбука, вы должны чувствовать себя как дома с форм-фактором 75%.
Наиболее очевидным недостатком здесь является то, что иногда бывает сложно найти ключи в большом блоке без пробелов.
ПРИМЕЧАНИЕ: Вы хотите купить специальный набор клавиш для своей новой механической клавиатуры? Если это так, я предлагаю уменьшить на следующий размер или увеличить предыдущий размер, так как колпачки клавиш для этого форм-фактора создают неудобства.Вы можете прочитать больше о совместимости клавишных колпачков в конце.
Vortex Race 3 — это пример клавиатуры на 75%.60%
В корпусе с форм-фактором 60% удаляет все, что находится справа от клавиши Enter, а также строку функций.
Эти функции обычно доступны, удерживая FN и нажимая другие клавиши. Форм-фактор 60% имеет около 61 клавиши, в зависимости от раскладки.
Выбирая клавиатуру с форм-фактором 60%, вы входите в мир минимализма и эстетики, а не прагматизма и функциональности.Этот форм-фактор великолепен, если вы хотите настроить механическую клавиатуру или просто взять ее с собой в дорогу.
Vortex Pok3r — обычный выбор для 60% клавиатуры.Игры
Это форм-фактор, который на самом деле не подходит к остальным из этих более стандартных вариантов, но я включу его для ясности. Игровой форм-фактор обычно представляет собой проприетарный форм-фактор, который включает макро- и мультимедийные ключи, а иногда отклоняется от стандарта ANSI или ISO, что я объясню в следующем разделе.Однако в большинстве случаев они наиболее близки к полноразмерному форм-фактору, но с добавленными макро- и мультимедийными клавишами.
Corsair K95 Platinum — классический образец игрового форм-фактора.
Для получения дополнительных форм-факторов вы можете просмотреть галерею Reddit / r / Mechanicalkeyboard, чтобы попробовать все нетрадиционные варианты.
Макеты
Форм-фактор— не единственное, что влияет на физические характеристики клавиатуры. В зависимости от страны, в которой вы живете, вы можете по-разному относиться к ключевым формам или функциям.
Как указано во вступлении, раскладка — это физическая форма и размер клавиш в пределах определенного форм-фактора.
ANSI, ISO и JIS
Эти раскладки охватят 99% раскладок, которые вы увидите на любой механической клавиатуре. Я выделил различия по отношению друг к другу, чтобы их было легче заметить. Если вы всю свою жизнь жили только в одной части мира, вероятно, вы когда-либо видели только одну из них. Обычно это ANSI для Америки, ISO для Европы и JIS для Японии.
Схема ANSI Макет ISO Макет JISЯзыковые макеты
Языковая раскладка (иногда виртуальная раскладка или логическая раскладка) — последнее звено в цепочке свойств клавиатуры:
- Форм-фактор
- Макет
- Языковая раскладка
По сути, это то, как операционная система решает, какой символ печатать на экране при нажатии клавиши.
Однако вы можете увидеть механические клавиатуры, продаваемые на разных языках.Все это означает, что на клавиатуре предварительно установлены колпачки клавиш, соответствующие языку.
Клавиатура ISO Nordic — это просто клавиатура с раскладкой ISO, снабженная набором клавиш Nordic. Вы по-прежнему можете установить в операционной системе любой язык, какой захотите.
Вот эталонное изображение между форматом и языком ISO на финском и эстонским форматом и языком ISO, чтобы вы понимали, о чем я говорю:
ISO Финский / Шведский ISO EstonianЕсли вы хотите узнать больше о различных языковых раскладках, вы можете подробно прочитать о них в Википедии.
Колпачки
Наконец, когда вы хотите приобрести новые колпачки для ключей, вы должны знать 3 вещи:
- Форм-фактор вашей клавиатуры
- Раскладка клавиатуры *
- язык , который вы вводите (необязательно)
Форм-фактор обычно не имеет значения.
Он решает, сколько клавиш должно быть у вашего набора для каждого переключателя. Однако, если вы используете механическую клавиатуру на 75%, которая не имеет универсального стандарта размера и / или размещения клавишных колпачков, шанс найти подходящий набор в основном ограничен дорогими индивидуальными сериями или наборами от производителя клавиатуры.
Далее идет макет. Стандартная компоновка ANSI предпочтительнее для большинства вариантов на рынке. Что бы у вас ни было, убедитесь, что набор соответствует макету. Наборы ISO не полностью подходят для раскладок клавиатуры ANSI, и наоборот. Это связано с разными размерами клавиш Enter и Shift, а также с дополнительной раскладкой клавиш ISO.
* Нижний ряд иногда является нестандартным, особенно на игровых клавиатурах, и поиск колпачков для нестандартного нижнего ряда сокращает ваши варианты.Вот быстрое изображение, чтобы определить, является ли ваша нижняя строка стандартной или нестандартной.
Стандартный нижний ряд.
Все модификаторы нижнего ряда имеют ширину 1,25x Нестандартный нижний ряд. Модификаторы нижнего ряда различаются по размеру.Наконец, если вам нужно смотреть на клавиши во время ввода, вам нужно будет купить набор, соответствующий языку, который вы вводите. Это последняя точка между набором клавиш вашей мечты и совместимость. Если вы привыкли печатать на бельгийской клавиатуре, различные легенды о скандинавском наборе клавиш могут вас сбить с толку.
Надеюсь, это руководство было для вас полезным! Если у вас есть еще вопросы или вы в чем-то не уверены, оставьте комментарий ниже. До скорого!
Редактор раскладки клавиатуры
Цвет легенды:{{colorName (мульти.default.textColor)}}
Ключевой цвет: {{colorName (multi.
color)}}
{{(мульти.см || meta.switchMount)? переключатели [multi.sm || meta.switchMount] .name: ‘Mount N / A’}}
{{(multi.sb || meta.switchBrand)? переключатели [multi.sm || meta.switchMount] .brands [multi.sb || meta.switchBrand] .name: ‘Brand N / A’}}
{{(мульти.ул || meta.switchType)? переключатели [multi.sm || meta.switchMount] .brands [multi.sb || meta.switchBrand] .
switches [multi.st || meta.switchType] .name: ‘Switch N / A’}}
GhostedSteppedHomingDecal
{{palette.name}} (подробнее) Щелкните образец, чтобы установить цвет выбранной клавиши (клавиш), или Ctrl + щелчок, чтобы установить цвет текста.Вы также можете перетащить образцы цвета на отдельные легенды, чтобы установить разные цвета для каждой из них.{{customStylesException}}
Скачать JSON Загрузить JSON
{{deserializeException}}
Заголовок: {{meta.name}}
Автор: {{meta.author}}
| Сводка размеров ключей | ||
|---|---|---|
| {{k}} | {{v}} | |
| Сводка по коммутаторам | ||
|---|---|---|
| {{k}} | {{switchNames [k]}} | {{v}} |
Распечатать сводку
Монитор Lenovo 43,4 ThinkVision P44w-10 (61D9RAT1EU)
Монитор ThinkVision P44w-10 zapewnia olśniewający obraz, który podniesie Twoją codzienną wydajność.
Duża powierzchnia ekranu o przekątnej 43,4 cala i szeroki kąt widzenia pobudzają kreatywność i zapewniaj olśniewające wrażenia podczas korzystania z rozrywki. Wszechstronne opcje łączności rozszerzają możliwości monitora i ułatwiają jego podłączenie do różnych urządzeń peryferyjnych. Десять мониторов ма mnóstwo zaawansowanych funkcji podnoszących Twoją wydajność. Jeden 43,4-дюймовый монитор ThinkVision P44w-10 или пропорциональный образ 32:10 ма закрашенный экран или мощный 24-дюймовый монитор или пропорциональный образ 16:10.Funkcje «картинка за кадром» (РВР) я «картинка-в-картинке» (PIP) obsługiwane ZA pomocą przełącznika KVM ułatwiają zarządzanie wejściowymi sygnałami Wideo г maksymalnie dwóch źródeł, umożliwiając płynną obsługę wielozadaniowości я oglądanie zawartości г dwóch Urządzeń jednocześnie. Podstawka z opcjami podnoszenia, pochylania oraz obrotu w pionie i poziomie pozwala na ustawienie monitora w sposób dostosowany do stylu pracy. Два встроенных порта USB 3.1 Type-C позволяют подключать максимальные два языка и видео, звуковые сигналы / видео или видео или изображения, как правило, с засилением или скоростью до 90 Вт.Zamykany na przycisk koncentrator kryje dwa porty USB 3.1 i gniazdo audio zapewniające łączność w trybie PnP w domu, biurze czy do obsługi rozrywki. Funkcja Smart Power inteligentnie wykrywa poziom zużycia mocy i zarządza jej dystrybucją, pozwalając ładować do dwóch urządzeń jednocześnie. Zaawansowane porty, takie jak DisplayPort 1.4 i HDMI 2.0 zapewniają dodatkowe opcje połczeń. Zakrzywiony monitor z powłoką przeciwodblaskową i certyfikatem TÜV Eye Comfort ogranicza zmęczenie wzroku i pozwala bezpiecznie pracować przez wiele godzin.Oprócz tego rozdzielczość 3840 x 1200 w polczeniu z technologią Display HDR ™ 400 с сертификатом VESA zapewniają wyrazisty obraz. Częstotliwość odświeania 144 Hz pozwala ogldać dynamiczne obrazy bez opónień *. Wiele przestrzeni kolorów, wstępnie skalibrowana dokładność odwzorowania kolorów orraz oprogramowanie ThinkColor ułatwiają tworzenie. Opcjonalny głośnik z certyfikatem Harman Kardon w połączeniu z realistycznym obrazem na ekranie tworzą spójne środowisko audiowizualne.

Григорьев, А. Надысев, Т. Принтц, А. Цыганкова





Перепланировка однокомнатной квартиры П-44.